EasyManua.ls Logo

wsm L3301 - Page 277

wsm L3301
662 pages
Print Icon
To Next Page IconTo Next Page
To Next Page IconTo Next Page
To Previous Page IconTo Previous Page
To Previous Page IconTo Previous Page
Loading...
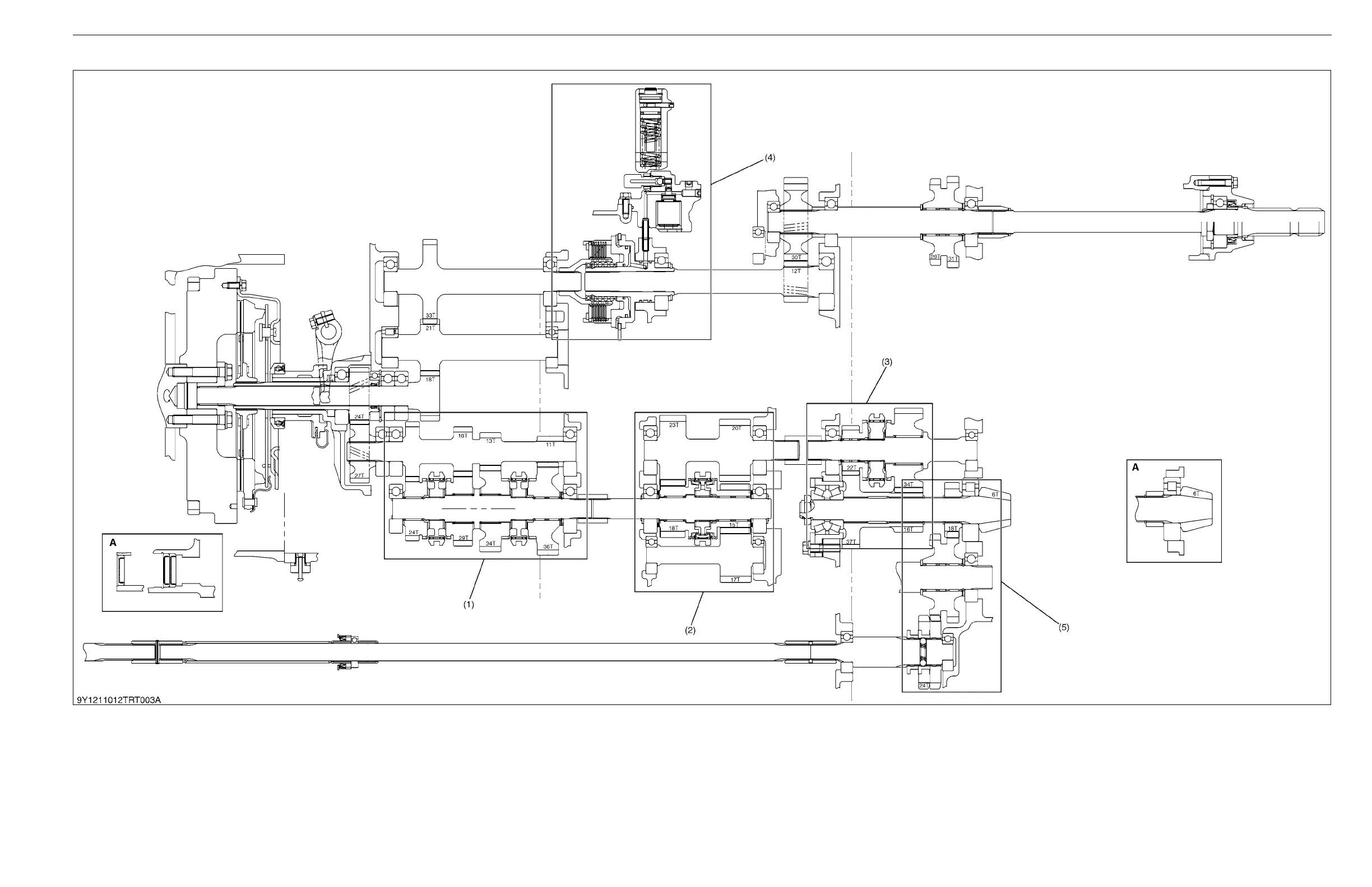
TRANSMISSION
L3301, L3901, L4701, WSM
3-M3
(3) L4701
(1) Main Gear Shift Section (2) Synchro-shuttle Gear Shift Section (3) Lo Range Gear Shift Section (4) PTO Clutch Section (5) Front Wheel Drive Section (4WD Model Only) A: 2WD Model
KiSC issued 09, 2016 A

Table of Contents

Related product manuals