EasyManua.ls Logo

wsm L3301 - Manual Transmission Model; L3301; Main Gear Shift Section

wsm L3301
662 pages
Print Icon
To Next Page IconTo Next Page
To Next Page IconTo Next Page
To Previous Page IconTo Previous Page
To Previous Page IconTo Previous Page
Loading...
TRANSMISSION
L3301, L3901, L4701, WSM
3-M6
2. MANUAL TRANSMISSION MODEL
[1] POWER TRAIN FOR TRAVELING GEARS
(1) Main Gear Shift Section
L3301/L3901
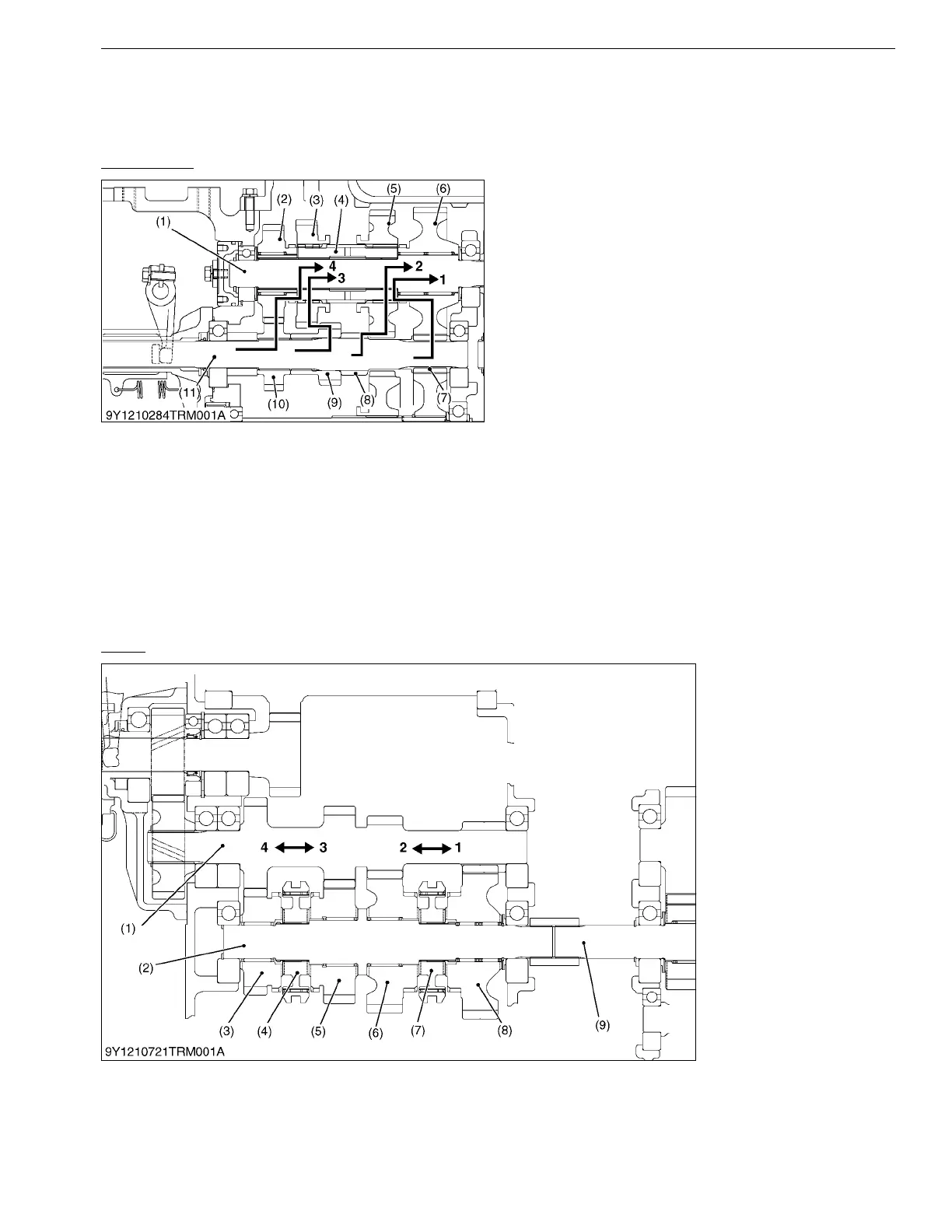
Besides neutral, four ways of power train from the
main gear shaft (11) to the counter shaft (1) are available
by operating the 1, 2, 3, 4 range gear shift lever.
Power is transmitted as follows.
1: 1st Speed
Main Gear Shaft (11) 10T Gear (7) 45T Gear
(6) 45T Shift Gear (5) Spline Boss (4) Counter
Shaft (1).
2: 2nd Speed
Main Gear Shaft (11) 13T Gear (8) 45T Shift
Gear (5) Spline Boss (4) Counter Shaft (1).
3: 3rd Speed
Main Gear Shaft (11) 19T Gear (9) 39T Shift
Gear (3) Spline Boss (4) Counter Shaft (1).
4: 4th Speed
Main Gear Shaft (11) 23T Gear (10) 32T Gear
(2) 39T Shift Gear (3) Spline Boss (4) Counter
Shaft (1).
9Y1211012TRM0001US0
L4701
The main gear shift section is located in the clutch housing, and it uses a constant mesh.
Power is transmitted from the engine to the gear shaft (input) (1) and the counter shaft (2) through the main shaft.
Gear shifting is done by sliding the shifters (4), (7).
9Y1211012TRM0002US0
(1) Counter Shaft
(2) 32T Gear
(3) 39T Shift Gear
(4) Spline Boss
(5) 45T Shift Gear
(6) 45T Gear
(7) 10T Gear
(8) 13T Gear
(9) 19T Gear
(10) 23T Gear
(11) Main Gear Shaft
(1) Gear Shaft
(2) Counter Shaft
(3) Gear for 4th
(4) Shifter
(5) Gear for 3rd
(6) Gear for 2nd
(7) Shifter
(8) Gear for 1st
(9) Shuttle Shaft
1: 1st Speed
2: 2nd Speed
3: 3rd Speed
4: 4th Speed
KiSC issued 09, 2016 A

Table of Contents

Related product manuals