EasyManua.ls Logo

Bosch EPS 708 - Page 109

Bosch EPS 708
126 pages
Print Icon
To Next Page IconTo Next Page
To Next Page IconTo Next Page
To Previous Page IconTo Previous Page
To Previous Page IconTo Previous Page
Loading...
Änderung
2
0
Datum
Name
Datum
Bearb.
Gepr.
Norm
1
06.10.2004
ENG13-EU-Ge.
22.10.2015
Urspr.
EPS708
2
Ers.f.
3
Ers.d.
Robert Bosch GmbH
4
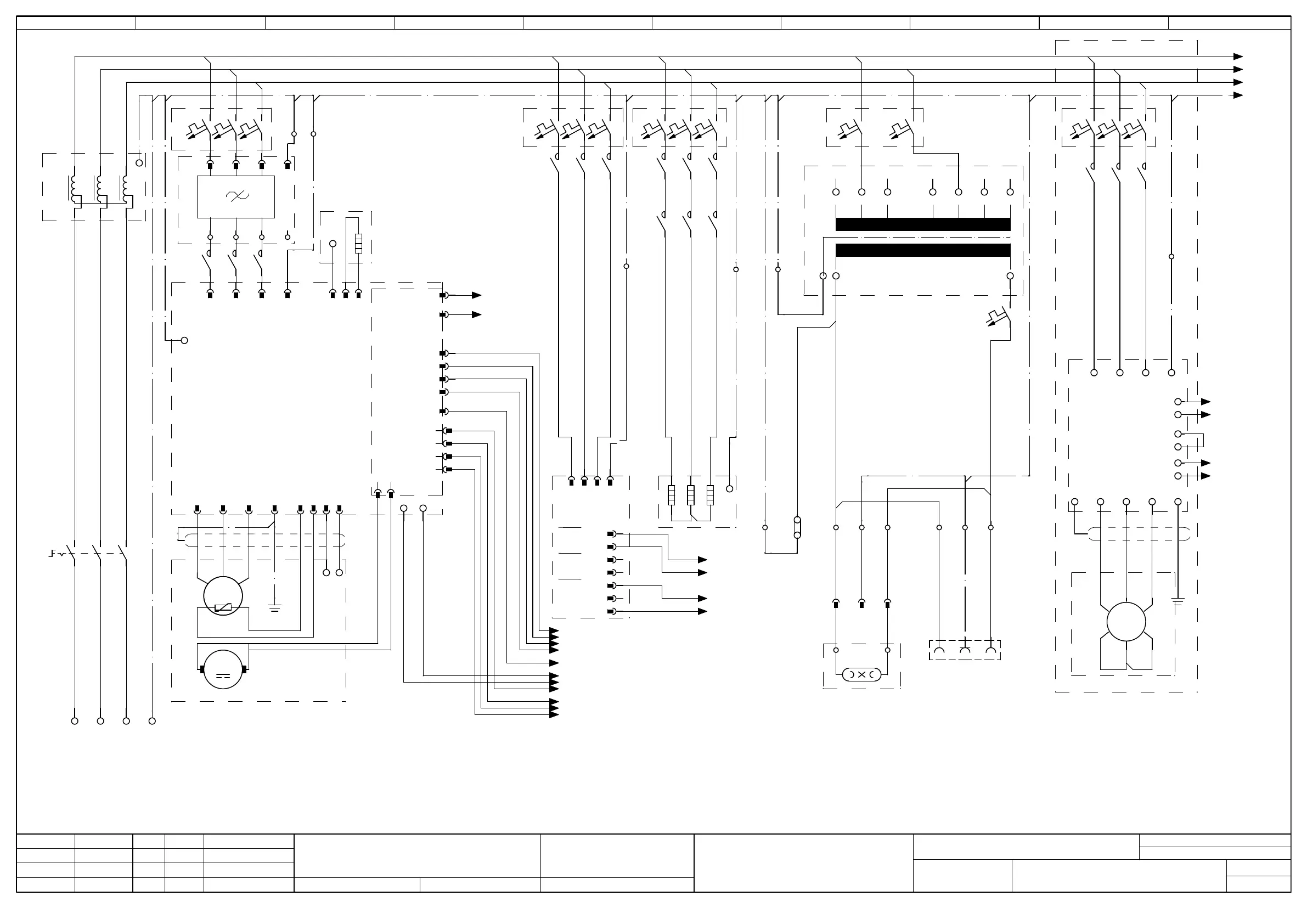
NETZANSCHLUSS / ANTRIEB
5678
=
+
9
Bl.
9 Bl.
4
3
1680S00277
1680S01047 22.10.2015
1680S00392 15.01.2013
20.09.2012
Ge.
Ge.
Ge.
088/TEF6
Stromlaufplan
DIN A3
1689 911 487
400
EPS708 - 380/400/415/440V
EPS708 - 200/220/230/240V
BN
400
BK
400
GY GN/YE
Drive
E1
E/A30
E1n
+24V
0V
Compr.
Compr.
Alarm
Water-
Chiller
NO
C
NC
C
NC
NO
C
Tank-
Heating
+20V
0V
0V
Light
-20V
380V
400V
Socket-Outlet
_int.
415V
440V230V
Option:
Lubricant-
Oil-Pump_AC
AI1
GND
F
CC
+24V
X1
SB
.
-T1
2
1
4
3
6
5
-Q1
L1 L2 L3
SL
PE
A11
400V
M1
PE
Z1
X5.A1
U1
W2
V1 U2
W1
3~
M
.
G
2
1
4
3
6
5
F1
B32A
1
2
K1
5.2
X3 .L1
.A2
3
4
.L2
.A3
5
6
.L3
.SL
PE
PE
-X1.4
SL2
X6
SL1
.
R1
.
.
PE
PE
.
.
X9.1
1
2
.
X9.2
A12
X8
.
24V
7
0V
6
X41.1
X41.4
X41.8
X41.9
X30
X2
X31.1
X31.2
X31.8
X31.9
X32.9
1
2
3
4
5
8
9
10
11
2
1
F2
C13A
1
2
-K2
5.3
G1
J4.1
4
3
3
4
2 3
6
5
5
6
SL
J3
7
6
5
4
3
2
1
-X1.1
SL1.2
2
1
F3
B6A
1
2
-K3
5.4
1
2
-K4
5.4
E1
1
2
1
4
2
3
4
3
3
4
3
4
1
2
1
2
6
5
5
6
5
6
SL
SL1.3
-X1.2
SL3.1
SL3.2
102
T2
860VA
SL
H1
1
15
100
1
X23
2
1
4
3
F7
S6A
2
SL2.3
3
101
2
4
100
NL'SL
X3
5
SL2.4
6
101
7
16
2
1
F9
S4A
A13
380-500V
2
1
F6
B6A
L1
U/T1
1
4
3
L2
V/T2
2
6
5
L3
W/T3
3
SL1.1
PE
PE
50A
M11
M
3
˜
1
2
K8
3
4
5
6
RS485
/ 9.3
RS232
/ 9.4
A12_X31/1
/
5.4
A12_X31/2
/
5.4
A12_X31/8
/
5.4
A12_X31/9
/
5.4
E1
/
5.4
GND_24
/
5.4
+24V
/
5.4
EA30
/
5.4
E1N
/
5.4
0V-E
/
5.4
24V-E
/
5.4
COMPR
/9.8
COMPR+
/9.8
ALARM
/9.8
ALARM+
/9.8
ANALOG_+ /9.1
ANALOG_GND /9.1
L1
/ 4.0
L2
/ 4.0
L3
/ 4.0
SL
/ 4.0
A13_X1 /5.6
A13_+24 5.6

Table of Contents

Other manuals for Bosch EPS 708

Related product manuals