EasyManua.ls Logo

Brookfield TT100 - Page 116

Brookfield TT100
134 pages
Print Icon
To Next Page IconTo Next Page
To Next Page IconTo Next Page
To Previous Page IconTo Previous Page
To Previous Page IconTo Previous Page
Loading...
Appendix B - Drawings
B-8 P/N M/97-520
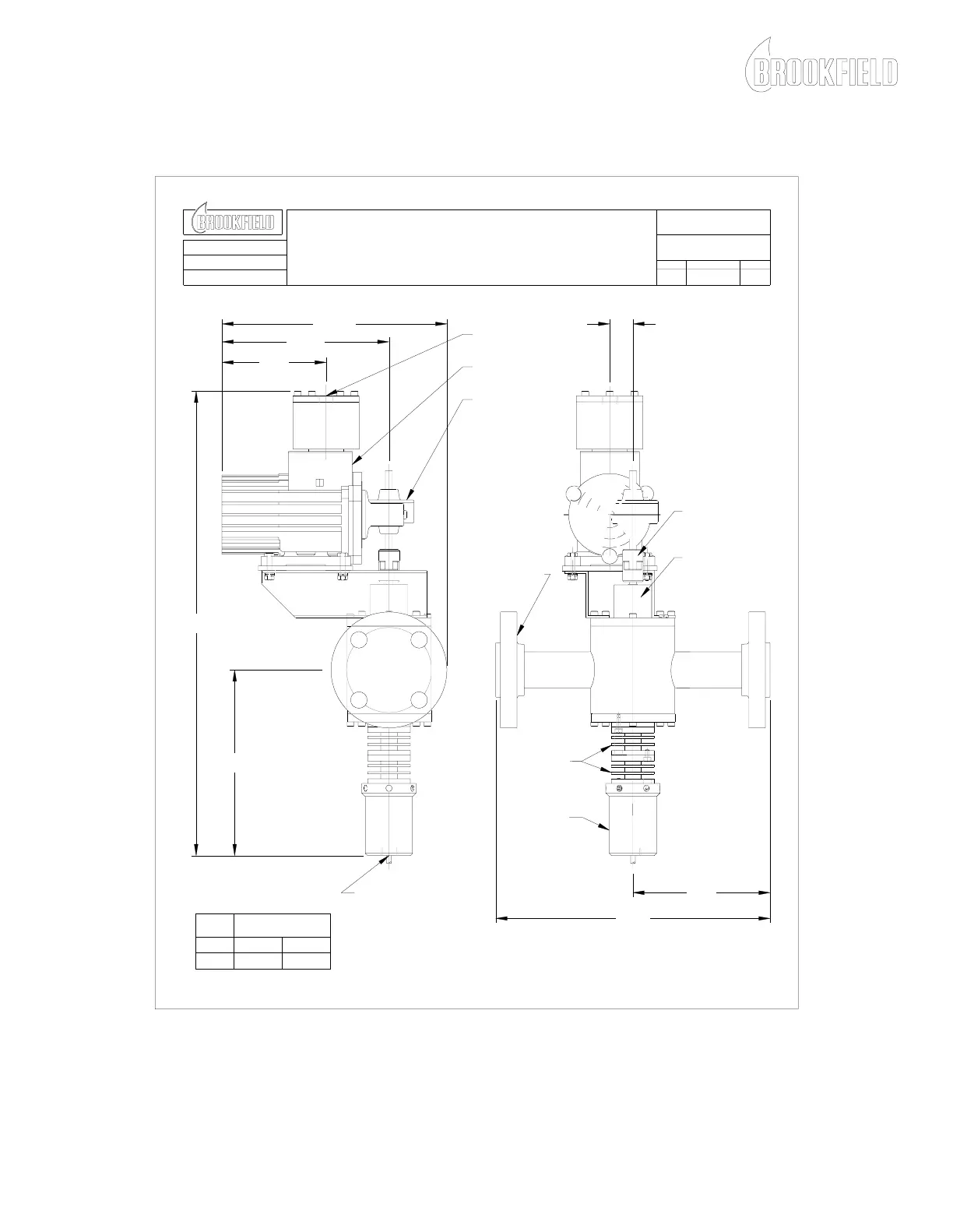
Figure B-8:TT100 Viscometer for Hazardous Areas (NEMA 7)
DOCUMENT NO.
PAGE NO.
REV. NO.
TITLE
CREATED BY
APPROVED BY
DATE CHK. BY
DATE
TT100 EXPLOSION-PROOF VISCOMETER (NEMA 7)
WITH 1 1/2" INLET/OUTLET, 300/600 LB. FLANGES
AND GROSCHOPP EXPLOSION-PROOF MOTOR
CA3-074
1 OF 1
KFM
1/2/96
"A"
"B"
14 1/2
7 1/4
11 29/32
8 27/32
5 1/2
1 7/32
NOTE:
INSTRUMENT RATINGS FOR PRESSURE, TEMPERATURE & VISCOSITY
REFER TO INSTRUMENT SPECIFICATION SHEET CA5-007.
POWER IN
1/2 N.P.T.
GROSCHOPP EXP.
PROOF MOTOR
SINGLE REDUCTION
WORMGEAR REDUCER
DRIVE
COUPLING
BEARING
SUPPORT
300/600 LB. FLANGES
1 1/2",
INSULATOR (2)
MICROSYN
1/2" N.P.T.
INLET & OUTLET
FIELD
(SEE TABLE)
COIL COVER
DIM.
# OF INSULATORS
1
2
23 1/16 24 9/16"A"
8 5/16 9 13/16"B"
2/24/991
HWC

Table of Contents

Related product manuals