EasyManua.ls Logo

Brookfield TT100 - Page 117

Brookfield TT100
134 pages
Print Icon
To Next Page IconTo Next Page
To Next Page IconTo Next Page
To Previous Page IconTo Previous Page
To Previous Page IconTo Previous Page
Loading...
TT100 In-Line Viscometer Installation, Operation, Maintenance and Service Instructions
P/N M/97-520 B-9
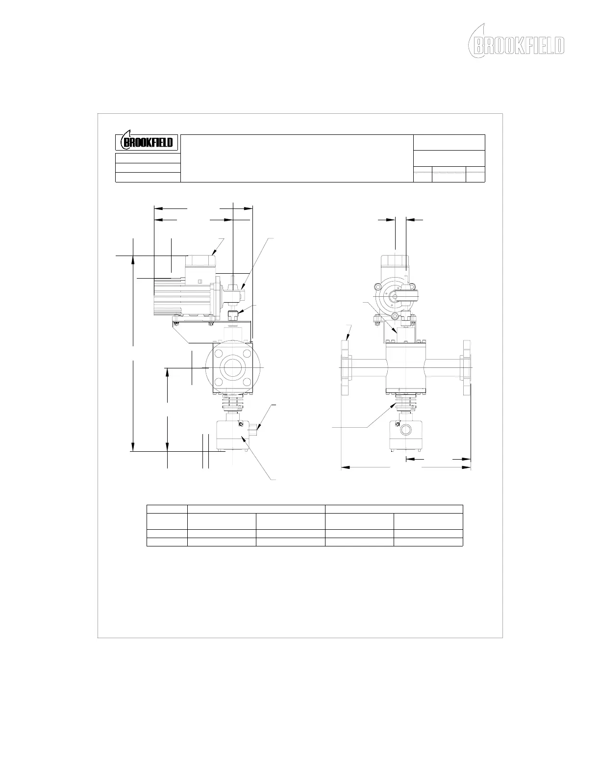
Figure B-9:TT100 Viscometer for Hazardous Areas (CENELEC)
INSULATOR(1)
TT-100-101
TT-100-102
SUPPORT
BEARING
GROSCHOPP MOTOR
DRIVE
COUPLING
SINGLE REDUCTION
WORMGEAR REDUCER
(VOLTAGE & FREQUENCY PER SPEC. SHEET).
IN SEPARATE ENCLOSURE IN NON-HAZARDOUS AREA.
POWER LEADS TO CAPACITOR & SWITCH MOUNTED
INSTRUMENT RATINGS FOR PRESSURE, TEMPERATURE & VISCOSITY:
REFER TO INSTRUMENT SPEC. SHEET.
#GECEAT-2 KILLARK EXP. PROOF
ENCLOSURE.(REF. DWG. TT-100-146Y)
3/4 CONDUIT
1 1/2",150# FLANGE
INLET & OUTLET
NOTES:
14 1/2"
7 1/4"
11 1/32
1 7/32
DOCUMENT NO.
PAGE NO.
REV. NO.
TITLE
CREATED BY
APPROVED BY
DATE CHK. BY
DATE
FLANGES, FOR HAZARDOUS AREA APPLICATIONS
CA3-081
1 OF 1
10/6/97
TT100 VISCOMETER WITH 1 1/2" 150 LB.INLET/OUTLET
GROSCHOPP MOTOR
JRM
KFM
1 3/17/99
A
B
DIMENSION
B
A
9"
ONE INSULATOR (AS SHOWN)
INCREASED SAFETY
21 1/2
MOTOR (SHOWN)
EXPLOSION-PROOF
23 1/2
MOTOR
9"
TWO INSULATORS
INCREASED SAFETY
23"
MOTOR (SHOWN)
10 1/2
EXPLOSION-PROOF
10 1/2
25"
MOTOR
8 13/16

Table of Contents

Related product manuals