EasyManua.ls Logo

Cisco ONS 15454 - OC192 IR;STM64 SH 1550 Card

Cisco ONS 15454
728 pages
To Next Page IconTo Next Page
To Next Page IconTo Next Page
To Previous Page IconTo Previous Page
To Previous Page IconTo Previous Page
Loading...
4-32
Cisco ONS 15454 Reference Manual, R7.0.1
OL-9217-01
Chapter 4 Optical Cards
4.15 4.15.1 OC192 IR/STM64 SH 1550 Card-Level Indicators
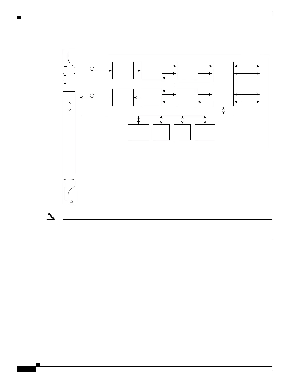
Figure 4-14 OC192 IR/STM64 SH 1550 Faceplate and Block Diagram
Note You must use a 3 to 15 dB fiber attenuator (5 dB recommended) when working with the
OC192 IR/STM64 SH 1550 card in a loopback. Do not use fiber loopbacks with the
OC192 IR/STM64 SH 1550 card. Using fiber loopbacks can cause irreparable damage to the card.
You can install OC192 IR/STM64 SH 1550 cards in Slot 5, 6, 12, or 13. You can provision this card as
part of a BLSR, path protection, or linear configuration, or also as a regenerator for longer span reaches.
The OC192 IR/STM64 SH 1550 port features a 1550-nm laser and contains a transmit and receive
connector (labeled) on the card faceplate. The card uses a dual SC connector for optical cable
termination. The card supports 1+1 unidirectional and bidirectional facility protection. It also supports
1:1 protection in four-fiber BLSR applications where both span switching and ring switching might
occur.
The OC192 IR/STM64 SH 1550 card detects SF, LOS, or LOF conditions on the optical facility. Refer
to the Cisco ONS 15454 Troubleshooting Guide for a description of these conditions. The card also
counts section and line BIP errors from B1 and B2 byte registers in the section and line overhead.
4.15.1 OC192 IR/STM64 SH 1550 Card-Level Indicators
Table 4-16 describes the three card-level LEDs on the OC192 IR/STM64 SH 1550 card.
Demux
CDR
Flash SRAM
Optical
transceiver
ADC x 8
Demux
BTC
ASIC
STM-64/
OC-192
STM-64/
OC-192
STM-64 / OC192
STM-64 / OC192
SCL
Processor
134368
B
a
c
k
p
l
a
n
e
Mux
CK Mpy
Optical
transceiver
Mux
SCL
FAIL
ACT
SF
1
Tx
Rx
OC192IR
STM64SH
1550

Table of Contents

Other manuals for Cisco ONS 15454

Related product manuals