EasyManua.ls Logo

CONQUEST 90 - Page 111

CONQUEST 90
126 pages
Print Icon
To Next Page IconTo Next Page
To Next Page IconTo Next Page
To Previous Page IconTo Previous Page
To Previous Page IconTo Previous Page
Loading...
......
0
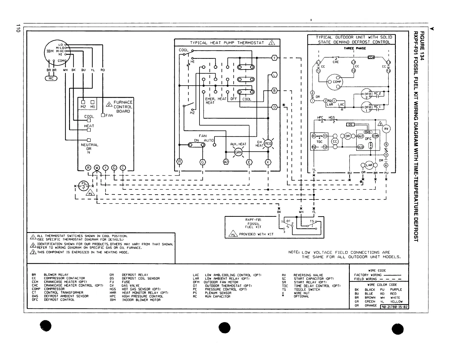
TYPICAL OUTDOOR UNIT WITH SOLID
TYPICAL HEAT PUMP THERMOSTAT
L'.0,
STATE DEMAND DEFROST CONTROL
THREE PHASE
I
BR BR WH BK BU YL RD
00
ill FURNACE
M2 Ml
CONTROL
BOARD
H2
COOL
FAN
HEAT
FAN
ON AUTO
NEUTRAL
OR
N
®!];_{y){G) {c) R-- W2 E YL DR~
I I I I I ,---, I------ Bu-DR-BR-PU
L_ r-t--t- _ ______ ___. X I I I I
1'1 + --------- _J I I L-;---+- -X
~
f
~
x-@;,I Y.- - -+- - - - - - - - - - - - - - - _____ .J L _ + _ + - - - - - - _
IL
~
I L - -
~
-=--=--=--=--=--=--=--=--=--=--=--=--=--=--=--=--=--=--=--=--=-- ~-=-- -=--=--=-t -=-'! - - - - - - - - -J I
--4--------------------------------~-------------_J
L----------------------------, ' I
X X
~
BK WH YL
RXPF·F01
FOSSIL
FUEL KIT
~QH~
~
PROVIDEDWITH KIT
~
~
&~~~~~IF+gA~\g7Ntg!~:A~R giRs:tc~~~~T~A~T~~RilLM~iJR:A:CYE.FROM THAT SHOWN.
Ll':,THIS COMPONENT IS ENERGIZED IN THE HEATING MODE.
NOTE: LOW VOLTAGE FIELD CONNECTIONS ARE
THE SAME FOR ALL OUTDOOR UNIT MODELS.
WIRE CODE
BR BLOWERRELAY DR
DEFROST RELAY
LAC
LOW AMB, COOLING CONTROL IOPT> RV REVERSING VALVE
FACTORY
WIRING ----
cc
COMPRESSOR CONTACTOR
OS DEFROST COIL SENSOR LAR
LOW AMBIENT RELAY IOPTI
SC
START CAPACITOR <OPT>
FIELD WIRING - - - -
CCH CRANKCASE HEATER IOPTI
FU FUSE
OFM OUTDOOR FAN MOTOR
SR
START RELAY IOPT)
CHC CRANKCASE HEATER CONTROL IOPTI
GV GAS VALVE
OT
OUTDOOR THERMOSTAT IOPTI
TDC
TIME DELAY CONTROL IOPn
WIRE COLOR CODE
COMP COMPRESSOR
HGS HOT GAS SENSOR IOPTI
PC PRESSURE CONTROL IOPTI
TS TOGGLE SWITCH
BK BLACK PU PURPLE
CT CONTROL TRANSFORMER
HMR HEAT MONITOR RELAY IOPTI
PS PLENUM SENSOR
X
WIRE NUT
BU BLUE RO RED
DAS DEFROST AMBIENT SENSOR
HPC HIGH PRESSURE CONTROL
RC RUN CAPACITOR
OPTIONAL
BR BROWN
WH WHITE
*
DFC DEFROST CONTROL
!BM
INDOOR BLOWER MOTOR
GR GREEN
YL YELLOW
OR ORANGE
q0-Zt 7B0·I5·02
JJ .,,
><-
"ti G')
.,, C:
I lJ
.,, m
g ...
.,,(,)
o""'
en
S!?
r-
.,,
C:
m
r-
::j
"
:e
:ij
z
G')
C
G')
JJ
)>
s::
:e
::j
:I:
-I
~
m
.:..
m
s::
"ti
m
JJ
~
C:
JJ
m
C
m
.,,
JJ
0
en
-I

Table of Contents