EasyManua.ls Logo

CONQUEST 90 - Page 112

CONQUEST 90
126 pages
Print Icon
To Next Page IconTo Next Page
To Next Page IconTo Next Page
To Previous Page IconTo Previous Page
To Previous Page IconTo Previous Page
Loading...
::rJ.,,
-
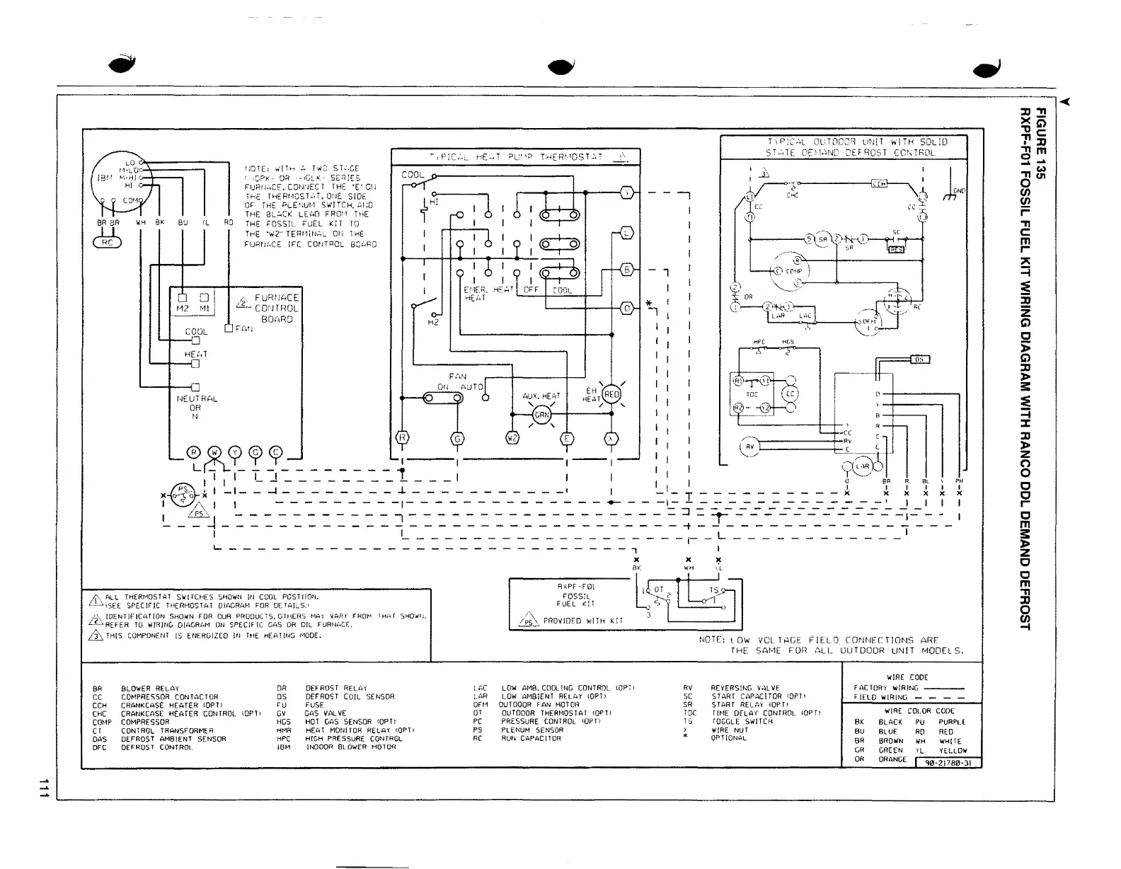
T, PJ:.:.L OUTOOC:'1UNIT WITH SOUO
s
1
.-.1E nErl.:iNC ::'ErROST CCt,TROL
,1orE, .11,-, .:. TwC ST.:.GE
I \ I
'-1::,PI(- OR
,-1C,!..K.~ SER!£S
COOL_p------------,
t ...J.:I - I
FUR11.:.CE. CON'IECT THE 'E'
or,
w-;r--,ili}-\~
Tt-1E THERMCST.=tT, OtJE SIDE
7
or THE PL-Ef!LJM SWITCH. Al;O
lo "x
THE BL.:.CK LEAD FR011 THE
~
/-
TJ)
BU (l
RJ THE >05S!L FUEL KU TO
I
MZ Ml'
NEUTRHL
OR
N
Tt-,E 'W2' TER11ilJ.:._
FURli~CE IFC
L]' FURIIACE
- CCtHROL
BOr1R'.l
FAtl
Oil 1 HE
COtJTROL Bc~RD
r
1
·-,
OR ;;: -
\..'.>---<'~zi+l:C :u'l:. fiC
L.:.R L,:.( / ,.. \ ,...
HZ
·...,prn
I
' t3.
HPC HCS
F Ali
Or, AUTO
R
1---1
J
I I
R Bl i Pt<
_,
I I I
I
I
X X X
X
-1- I - - - - -
_,
I I I I
-
1- - -
~~=t-~-=_:_.:_:_---
L
,
X X ):<
8K WH \ L
RXPF -FOi
& ~ELE r;PEt~~~fZ A ;HEs:J~~~•~; ~~~;;AJ\~go~E~~i~~
1
?"·
~~
~
PROvlOED WITH K,T
&~~~l~~IF:~A~ll~~NiHg:~:k~R g~RS;E~~~~~;~(.~T~!R~lt~lUR~:RCT~.FROM THA f SHO·~rt.
& THIS COMPONEIH IS ENERGIZED IN THE HEATING MOOE.
NOTE: LOW VOLTAGE FJELD CONNECTIONS ARE
THE SAME FOR ALL OUTDOOR UNIT MODELS.
)(
"'0 C')
.,, C:
I ::D
;Bm
.....
...
.,,
u,
c.>
0
CJ)
(/)
;=
.,,
C:
m
r-
=i
:E
"
:ij
z
C')
C
;;:
C')
::rJ
)>
s:
:E
=i
::z::
21
)>
z
0
0
0
0
r-
0
m
s:
)>
z
C
0
m
.,,
::D
0
CJ)
-t
WIRE CODE
BR
cc
BLOWER RELAY
COMPRESSOR CONlAClOR
OR
05
DEFROST RELAY
OffAOST COIL SENSOR
LAC
!...AR
LOW AMB. COOLING CONTROL mpr,
LOW AM8lENT RELAY lQPTl
RV
SC
AEVERStNG VAL VE
START CAPAC! TOR l0P1'
FACTORY WIRING ----
F IELO WIRING
- -
CCH
CHC
CRANKCASE HEATER
CRANKCASE Hf.ATER
!OPTl
CONTROL
lOPTl
ru
GV
FUSE
GA$ VAL VE
OFM
OT
OUTDOOR VAN MOTOR
OUTDOOR THERMOSTAT <OP!!
SR
TDC
START RELA¥ lOPfi
TIME DELI« CONTROL <OPT>
WIRE COLOR
CODE
COMP
COMPRESSOR
HGS HOT GAS SENSOR lOPTl
PC PRESSURE CONTROL <OPT!
TS
TOGGLE SWITCH
BK
BLACK PU
PURPLE.
Cl
CONTROL TRANSFORMER
HMR
HEAT MONITOR RELAY (QPT; PS PLENUM SENSOR
X
WIRE NUT
BU
BLUE
AO
RED
OAS
OFC
DEFROST AMBIENT SENSOR
DEFROST CONTROL
HPC
IBM
HIGH PRESSURE CONTROL
INDOOR BLOWER MOTOR
RC RUN CAPACITOR
*
OPTIONAL
BR
GR
BROWN
GREEN
WH
YL
WHITE
YELLOW
OR
ORANGE
90-21780-31

Table of Contents