EasyManua.ls Logo

CONQUEST 90 - Page 114

CONQUEST 90
126 pages
Print Icon
To Next Page IconTo Next Page
To Next Page IconTo Next Page
To Previous Page IconTo Previous Page
To Previous Page IconTo Previous Page
Loading...
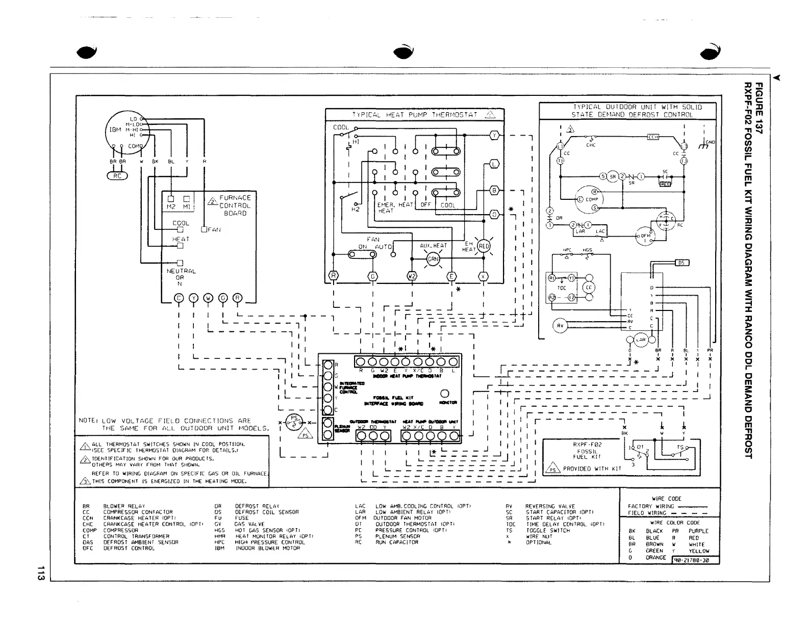
TYPICAL HEAT PUMP THERMOSTAT /~
J
*
7
7
I I
I I
I
...j.t .J
- .J
- _.J
TYPICAL OUlDOOR UN! T WITH SOLID
ST,HE DEMAND DEFROST CONTROL
D5
'--------1--1-Y
PR
I
X
I
I
L--------
_____ _,,J
LAC
LAR
OFM
or
PC
PS
RC
LOW AMB. COOLING CONTROL!OPT)
LOW AMBIENT RELAY IOPT>
Ou TOO OR FAN MO TOR
OUTDOOR THERMOSTAI <OPTJ
PRESSURE CONTROL 10PT>
PLENUM SENSOR
RUN CAPACITOR
RV
SC
SR
TDC
TS
X
*
REVERSING YALYE
START CAPACITOR IOPT!
START R£LA1 10PT1
TIME DELAY CONTROL <OPT1
TOGGLE SWITCH
WfRE NUT
OPTIONAL
WIRE CODE
FACTORY WIRING ----
FIELD WIRING - - - -
WIRE
COLOR CODE
SK BLACK PR PURPLE
Bl BLUE R REO
BR BROWN
W WHlfE
G GREEN YELLOW
O ORANGE 90·21780-30
.....
....
w
BR 8R w BK BL
R
d6
[J
M2 Ml i
HEAT
NEUTRr,L
OR
N
/2\ F UR!·;ACE
~CONTROL
BOARD
FAIJ
I
L-------,
L.--------
NOT(: LOW VOLTAGE FIELD CONNECTIONS ARE
THE SAME FOR hLL OUTDOOR UNIT MODELS.
ill ~ELE ';PEtc~~dAi'Ht:~~~~!
~
5;:;i;R;,~"Fg~o~E~~f: ~'.?"·
ill
6~~~~:
1~:~1~~,;';~i~;o;H~ts:t~~-ucrs.
L - - - _J
REFER TO WIRING DIAGRAM ON SPECIFIC GAS OR OIL FURNACE
ffi THIS COMPONENT IS ENERGIZED IN !HE HEATING MOOE.
BR
cc
CCH
CHC
COMP
CT
OAS
OFC
BlOiiER RELAY
COMPRESSOR CONTACTOR
CRANKCASE HEATER !OPT1
CRANKCASE HEATER CONTROL !OPT1
COMPRESSOR
CONTROL TRANSFORMER
Off ROS I AMBIENT SENSOR
OEFROST CONTROL
DR
OS
FU
GV
HGS
HMR
HPC
IBM
DEFROST RELAY
OEFROS
I COIL SENSOR
FUSE
GAS VALVE
HO! GAS SENSOR <OPT!
HE.At MONlTOA RELAY IOPTl
HIGH PRESSURE CONTROL
INDOOR BLOWtR MOTOR
I
L
o-<-----~
cc
::u'Tl
><-
.,, C,
'Tl C:
I lJ
.,, m
0_.
NW
cl ....
en
en
F
'Tl
C:
m
r-
"
=i
:E
:ij
z
C,
0
j;
C,
::u
l>
s::
:E
=i
:I:
:D
l>
z
0
0
C
C
r-
e
m
s::
l>
z
C
C
m
'Tl
:D
0
CJ)
--1

Table of Contents