EasyManua.ls Logo

CONQUEST 90 - Page 32

CONQUEST 90
126 pages
Print Icon
To Next Page IconTo Next Page
To Next Page IconTo Next Page
To Previous Page IconTo Previous Page
To Previous Page IconTo Previous Page
Loading...
IMPORTANT:DO NOT TAKE AIR
FROM AN ATTIC SPACE THAT IS
EQUIPPED WITH POWER
VENTILATION.
If combustion air is taken from
outdoors through horizontal ducts,
the openings and ducts must have at
least one square
inchof free area
for
each 2,000 BTUH of total
appliance input. See Table 15 for
some typical sizes.
y
TABLE15
HORIZONTAL OUTDOOR AIR
OPENING DIMENSIONS
BTUH
Free Area
RoundPipe
Input
Eacll Opening Size
45,000 22.50 square inches
6"
60,000 30.00 square inches
6"
75,000 37.50 square inches
r
90,000 45.00 square inches
105,000 52.50 square inches
120,000 60.00 square inches
If the unit is installed where there is
an exhaust fan, sufficient ventilation
must be provided to prevent the
exhaust fan from creating a negative
pressure.
Combustion air openings must not
be restricted in any manner.
Method 2
One permanent opening, located
within 12 inches of the top of the
enclosure, shall be permitted where
the equipment has clearances of at
least 1 inch from the sides and back
and 6 inches from the front of the
appliance. The opening shall directly
communicate with the outside or
communicate through a vertical or
horizontal duct to the outside or
spaces (crawl or attic) that freely
communicate with the outside, and
shall have a minimum free area of:
a. One square inch for each 3000
BTUHof the total input rating of
all equipment located in the
enclosure (see Table 16), and
b. Not less than the sum of the
areas of all vent connectors in
the confined space.
y
If the unit is installed where there is an
exhaust fan, sufficient ventilation must
be provided to prevent the exhaust fan
from creating a negative pressure.
Combustion air openings must not be
restricted in any manner.
CONSULT LOCAL CODES FOR
SPECIAL REQUIREMENTS.
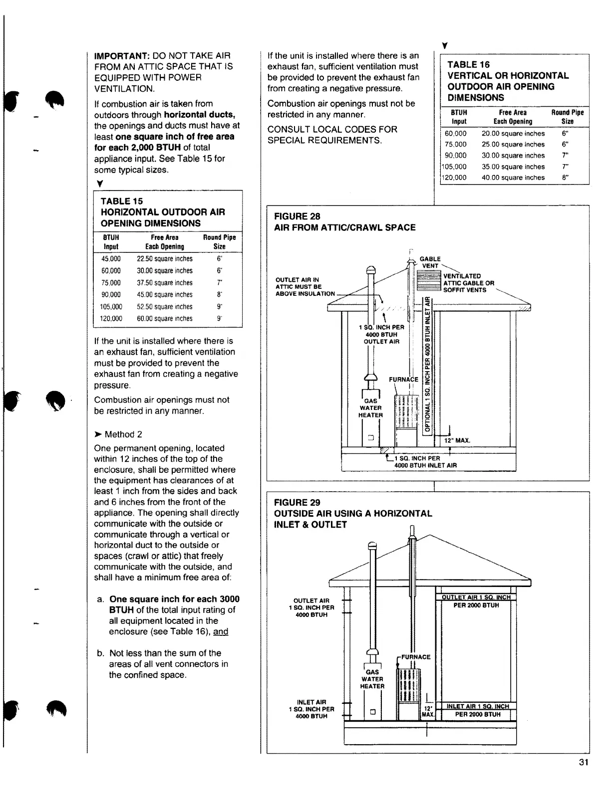
FIGURE28
AIR FROM ATTIC/CRAWL SPACE
OUTLET AIR IN
A
me MUST BE
ABOVE INSULATION--,""'----++-,
'
1.5
, ...
FURNAJE
~
11
FIGURE 29
WATER
HEATER
'.J
OUTSIDE AIR USING A HORIZONTAL
INLET & OUTLET
OUTLET AIR
1 SQ. INCH PER
4000BTUH
INLET AIR
1 SQ. INCH PER
4000BTUH
GAS
WATER
HEATER
TABLE 16
VERTICAL OR HORIZONTAL
OUTDOOR AIR OPENING
DIMENSIONS
BTUH free Area
RoundPipe
Input EachOpening Size
60,000 20.00 square inches 6"
75.000 25.00 square inches 6"
90,000 30.00 square inches
7"
105,000 35.00 square inches 7"
120,000 40.00 square inches 8"
INLET AIR 1
PER 2000 BTUH
31

Table of Contents