EasyManua.ls Logo

Daikin Super Multi Plus E-Series - Page 440

Daikin Super Multi Plus E-Series
456 pages
Print Icon
To Next Page IconTo Next Page
To Next Page IconTo Next Page
To Previous Page IconTo Previous Page
To Previous Page IconTo Previous Page
Loading...
Wiring Diagrams SiEN18-622
428 Appendix
2.3.2 Duct Connected Type
FDKS25/35CAVMB, FDKS50/60CVMB, FDKS25/35EAVMB
CDKS25/35/50/60CVMA, CDKS25/35EAVMA
FDXS25/35/50/60CVMA, CDXS25/35/50/60CVMA, CDXS25/35EAVMA
CDXS25/35/50/60DVMT, CDXS25/35EAVMT
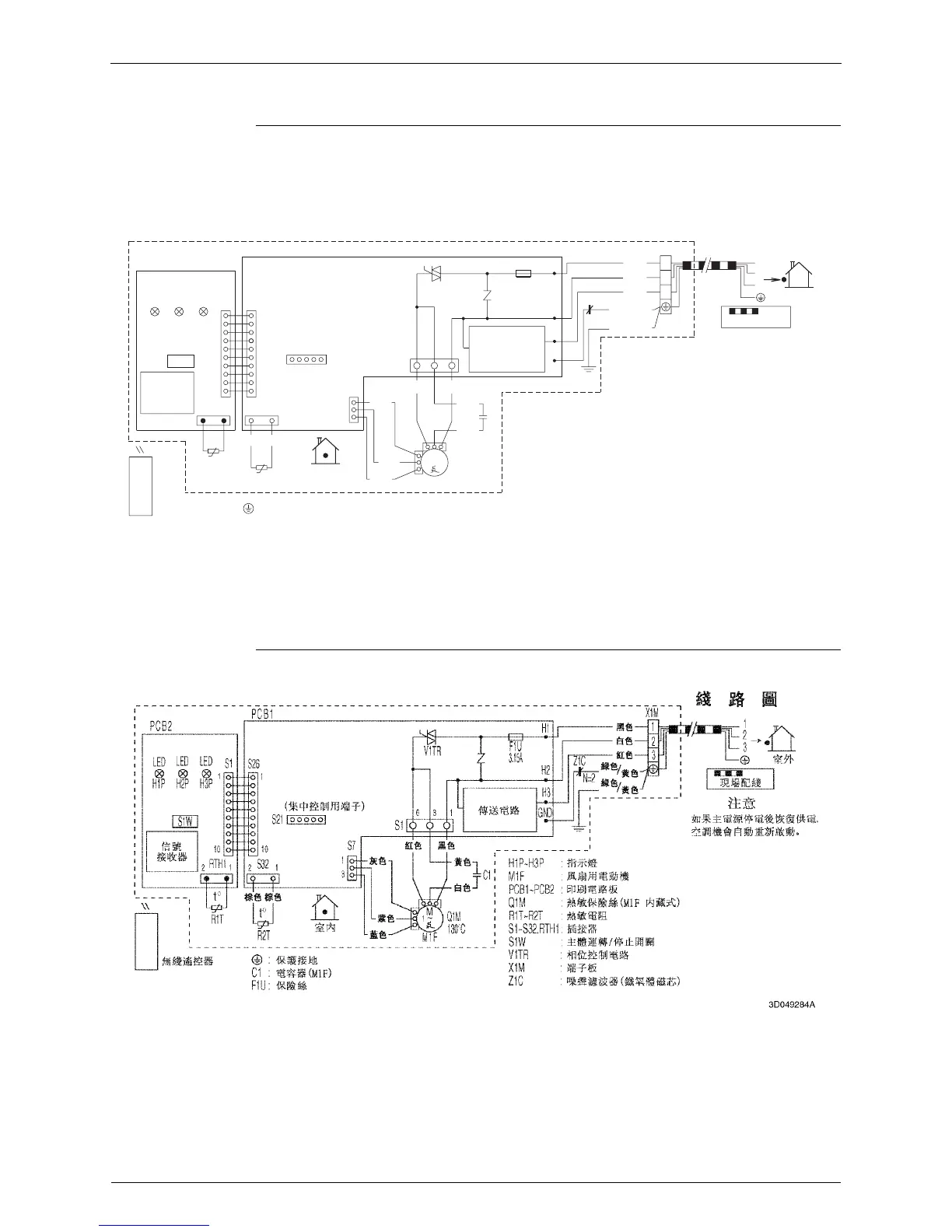
PCB2
LED
H1P
LED
H2P
S1W
LED
H3P
2
RTH1
R1T
10
1
S1
1
C1
BRN
F1U :
S26
2
PCB1
S32
R2T
1
10
:
:
BRN
S21
1
(
indoor
3
1
S7
BLU
GRY
PPL
S1
)
RED
6
V1TR
1
M1F
~
M
3
BLK
Q1M
130°C
1
WHT
YLW
C1
3.15A
F1U
Q1M
M1F
V1TR
S1W
X1M
Z1C
H1P ~ H3P
R1T ~ R2T
PCB1 ~ PCB2
S1 ~S32, RTH1
GND
H2
H3
H1
Z1C
N=2
GRN
GRN
WHT
/
/
BLK
RED
YLW
YLW
X1M
2
3
1
CAUTION
FIELD WIRING.
2
3
1
outdoor
3D045012K
SIGNAL
RECEIVER
TERMINAL FOR
CENTRALIZED CONTROL
INFRARED
REMOTE
CONTROL
TRANSMISSION
CIRCUIT
NOTE THAT OPERATION WILL
RESTART AUTOMATICALLY IF
THE MAIN POWER SUPPLY
ISTURNED OFF AND THEN BACK
ON AGAIN.
PROTECTIVE EARTH
CAPACITOR(M1F)
FUSE
: PILOT LAMP
: FAN MOTOR
: PRINTED CIRCUIT BOARD
: THERMAL PROTECTOR (M1F EMBEDDED)
: THERMISTOR
: CONNECTOR
: OPERATION SWITCH
: PHASE CONTROL CIRCUIT
: TERMINAL BLOCK
: NOISE FILTER (FERRITE CORE)

Table of Contents

Related product manuals