EasyManua.ls Logo

Daikin Super Multi Plus E-Series - Page 441

Daikin Super Multi Plus E-Series
456 pages
Print Icon
To Next Page IconTo Next Page
To Next Page IconTo Next Page
To Previous Page IconTo Previous Page
To Previous Page IconTo Previous Page
Loading...
SiEN18-622 Wiring Diagrams
Appendix 429
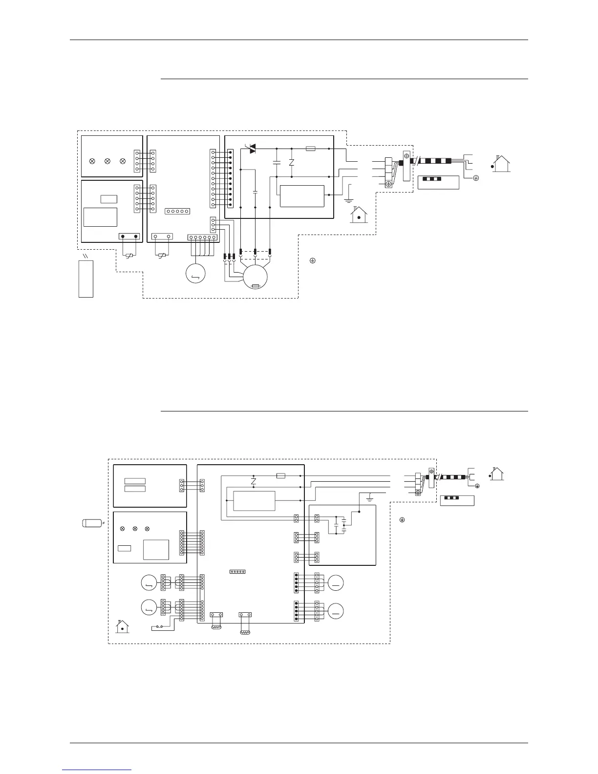
2.3.3 Floor / Ceiling Suspended Dual Type
FLXS25/35/50/60BVMA
2.3.4 Floor Standing Type
FVXS35/50BVMA
LED
H1P
PCB3
LED
H2P
PCB4
S1W
LED
H3P
R1T
S31
t°
S27
S25
S24
S26
S32
R2T
t°
PCB1
S21
HA
M
S6
M1S
S37
S7
X21A
S36
H4
100
1~
M
t°
H5
C70
°C
M1F
H6
X11A
PCB2
H1P~H3P
M1F
FU
M1S
C70
3.15A
Fu
H2
H3
H1
indoor
GRN
WHT
RED
BLK
/
YLW
X1M
2
3
1
S1W
S6~S37
,
X11A
,
X21A
PCB1~PCB4
R1T~R2T
X1M
CAUTION
FIELD WIRING.
2
3
1
outdoor
3D033909E
SIGNAL
RECEIVER
INFRARED
REMOTE
CONTROL
TRANSMISSION
CIRCUIT
NOTE THAT OPERATION WILL
RESTART AUTOMATICALLY IF
THE MAIN POWER SUPPLY IS
TURNED OFF AND THEN BACK
ON AGAIN.
: PROTECTIVE EARTH
: RUNNING CAPACITOR
: FUSE
: PILOT LAMP
: FAN MOTOR
: SWING MOTOR
: PRINTED CIRCUIT BOARD
: THERMISTOR
: CONNECTOR
: OPERATION SWITCH(SW7)
: TERMINAL STRIP
indoor
H1P
S1W
S2W
(
4
)
S4W
M2S
H2P
M1S
PCB4
PCB3
H3P
RECEIVER
SIGNAL
M
M
L1S
S24
S42
S26
S41
S23
S25
S6
PCB2
S31
R1T
S21
S32
R2T
HA
3.15A
FU
S7
S302
S203
S201
S301
H3
H2
H1
S44
S43
S8
S204
S202
PCB1
M
M
M2F
M1F
FG
GRN
WHT
BLK
RED
/
S4W
S6~S302
FU
M2S
S1W
PCB1~PCB4
S2W
(
4
)
M1S
L1S
X1M
R1T
,
R2T
M1F
,
M2F
H1P
,
H2P
,
H3P
YLW
X1M
2
3
1
FIELD WIRING.
3
2
1
outdoor
3D034713C
INFRARED
REMOTE
CONTROL
TRANSMISSION
CIRCUIT
(UPPER FAN MOTOR)
(LOWER FAN MOTOR)
: PROTECTIVE EARTH
: FUSE
: PILOT LAMP
: LIMIT SWITCH
: FAN MOTOR
: SWING MOTOR
: LOWER AIR OUTLET MOTOR
: PRINTED CIRCUIT BOARD
: THERMISTOR
: CONNECTOR
: OPERATION SWITCH
: UPWARD AIR FLOW LIMIT SWITCH
: AIR OUTLET SELECTION SWITCH
: TERMINAL STRIP

Table of Contents

Related product manuals