EasyManua.ls Logo

Dell 0G8DW - Technical Specifications; System Dimensions

Dell 0G8DW
175 pages
Print Icon
To Next Page IconTo Next Page
To Next Page IconTo Next Page
To Previous Page IconTo Previous Page
To Previous Page IconTo Previous Page
Loading...
Technical specications
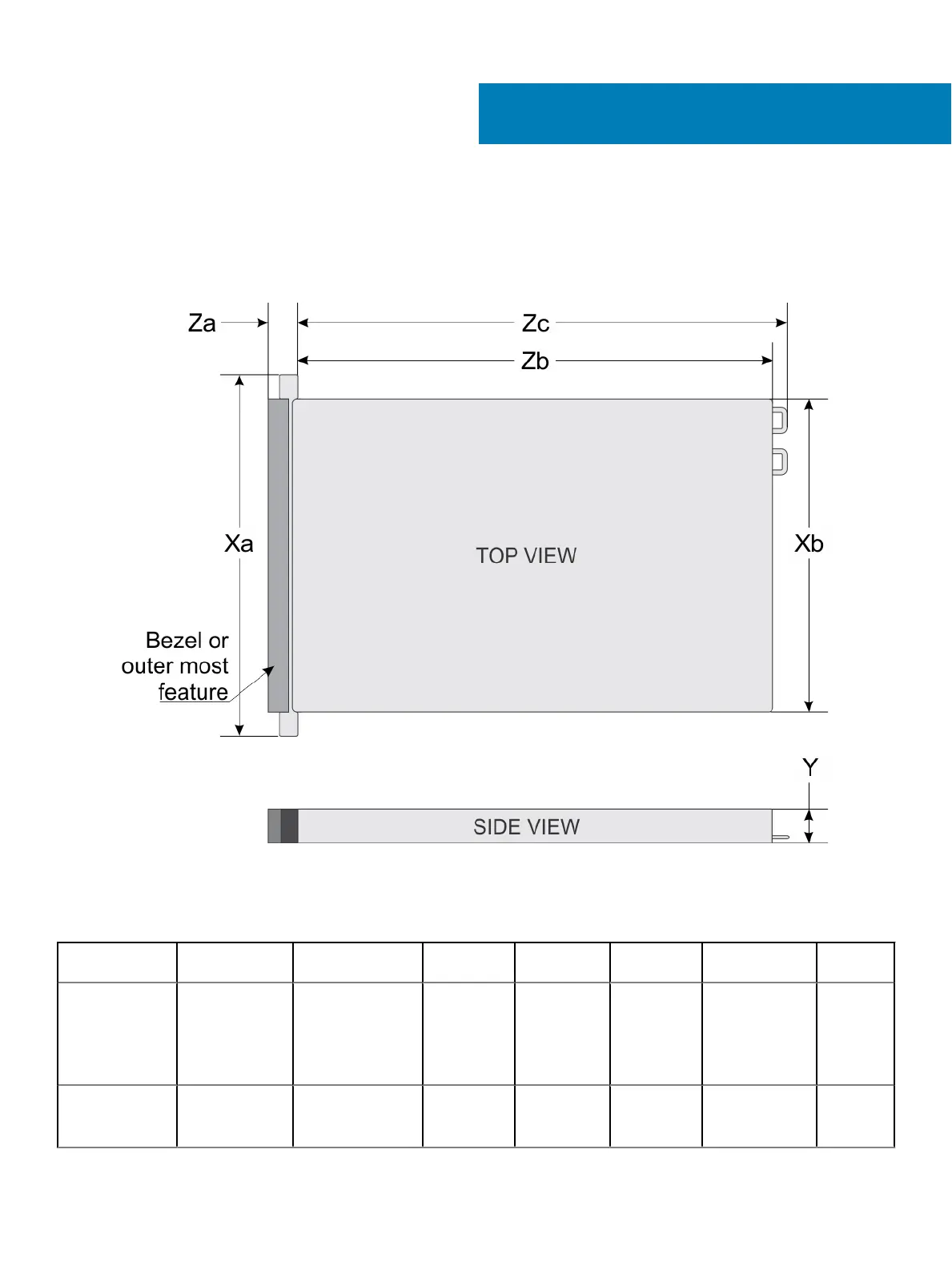
System dimensions
Figure 19. System dimensions
Table 19. Dimensions
System Xa Xb Y Za (with
bezel)
Za (without
bezel)
Zb
*
Zc
4 x 3.5-inches
or
10 x 2.5-inches
482.0 mm
(18.97-inches)
434.0 mm
(17.08-inches)
42.8 mm
(1.68-inches)
35.84 mm
(1.41-inches)
22.0 mm
(0.87-inches)
733.82 mm
(29.61-inches)
772.67 mm
(30.42-
inches)
8 x 2.5-inches 482.0 mm 434.0 mm
(17.08-inches)
42.8 mm
(1.68-inches)
35.84 mm
(1.41-inches)
22.0 mm
(0.87-inches)
683.05 mm
(26.89-inches)
721.91
3
Technical specications 33

Table of Contents

Related product manuals