EasyManua.ls Logo

Dodge Stealth 1994 - Page 103

Dodge Stealth 1994
434 pages
Print Icon
To Next Page IconTo Next Page
To Next Page IconTo Next Page
To Previous Page IconTo Previous Page
To Previous Page IconTo Previous Page
Loading...
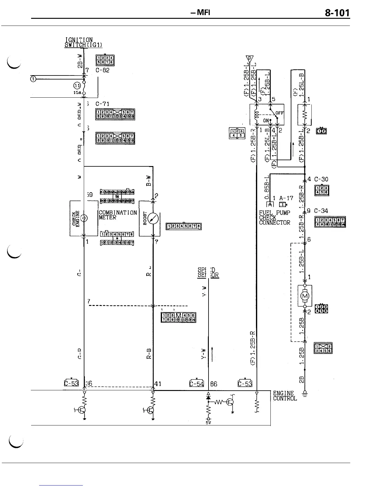
CIRCUIT DIAGRAMS
-
MFI
Circuit <TURBO>
8-101
IGNIl
SWIT(
3
1
::
a
C
3
I
z
a
C
3
a
D-04
5s
[
w-1
39
4zi
D-03
i
a
CA
iEi’G1,
J/B
5
D-44
5
d
59
1
r
4
P
7
------------______
a
d
IS_----------------
ti
1
1
COMBINATION
GAUGE
D-09
CllnlslrlslslTleJI
7
3
5
1
.----------
____
c-14
I1
ml
-5
06
0
-5
MFI
RELAY
Y
JJ
FUEL
PUMP
RELAY
B-20
:D
IOR
-
6
m
iii
ncu
L4
-,
1
)
Y2
3
cu
G
ON1
,,
\,
1yy2
d
'
NE3
,m
AA
L4
"A
t4
t
FUEL
1
PUMP
CIRCUIT
RESISTOR
1
A-51
ml
c-30
129
m
456
FUEL
PUMP
F-16
122
Elzl
456
5 F-14
MODULE
q

Table of Contents

Related product manuals