EasyManua.ls Logo

Dodge Stealth 1994 - Turn-Signal Light, Hazard Light and Stop Light Circuit

Dodge Stealth 1994
434 pages
Print Icon
To Next Page IconTo Next Page
To Next Page IconTo Next Page
To Previous Page IconTo Previous Page
To Previous Page IconTo Previous Page
Loading...
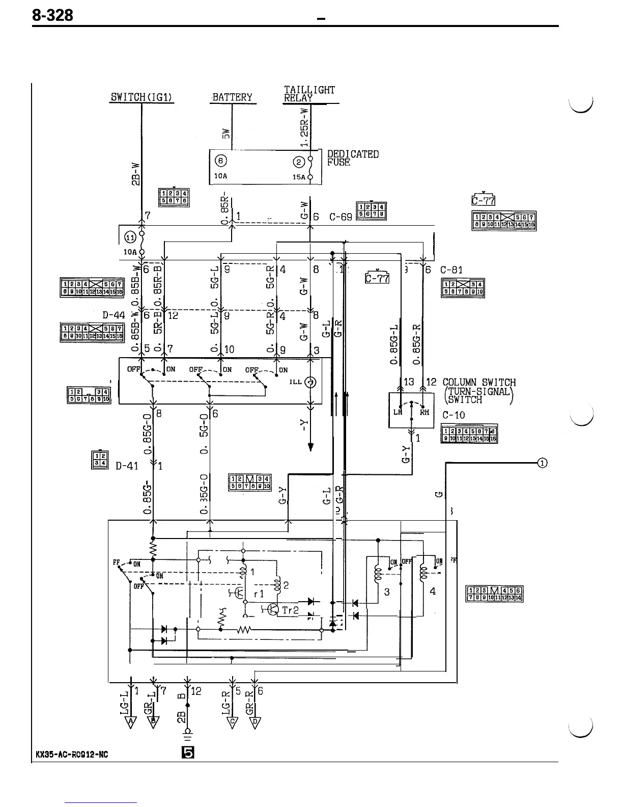
8-328
CHASSIS ELECTRICAL
-
Lighting System
TURN-SIGNAL LIGHT, HAZARD LIGHT AND STOP LIGHT CIRCUIT
<VEHICLES WITH LARGE BUMPER>
CIRCUIT DIAGRAM
IGNITION
SWITCHtIGl)
,BATTERY
;bMk\IGHT
1
fXD;CATED
?
w
1234
m
5376
63
10A
8
m
I
I
%
A7
C-82
z,>
-----r------
J/B
/\
/\
I
I
T
1OAb
\/
\/
\/
\/
\I .
\r
\
--------
-------_
____
C-71
7
6-F
52
;'g
Y4
8
'
Ei
!i3
3
2
7
m
m
m
w
-I
I
14
0'
-7
3
f3
is
f2
7
Y
m m
m
w
J
I‘
HAZARD
SWITCH
D-OS
I
\/
\I
\I
\I
Y8
\I
06
\I
2
I
L4
E?l
?-
co
m
d
t
,
"4 D-43
RHEOSTAT
0
I
3
m
d
14
d
11
10
/\
/\
/\
?
I
w
9L
c
>
-,
7
-
-
-
:
;
-
4
i
I
r
I
TURN SIGNAL
AND HAZARD
FLASHER UNIT
7-
o!!
--
4
E-30
i’“i
-----
jlme-;4T;g:r2
1
r
I
I
I
I
I I
I
I
I
\/ \I
\,
,,
+f”l
G/7
,“12
(5
+3
2 8
0
E
n
Z
KX35-AC-i?CQl2-NC

Table of Contents

Related product manuals