EasyManua.ls Logo

Dodge Stealth 1994 - Page 174

Dodge Stealth 1994
434 pages
Print Icon
To Next Page IconTo Next Page
To Next Page IconTo Next Page
To Previous Page IconTo Previous Page
To Previous Page IconTo Previous Page
Loading...
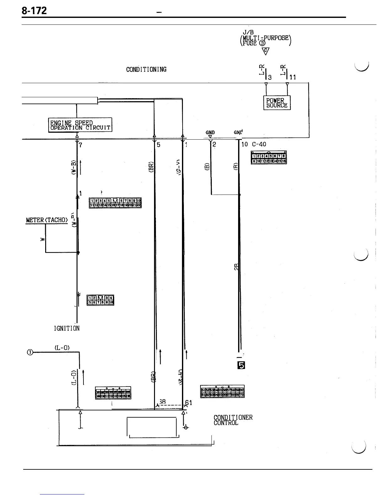
8-172
CIRCUIT DIAGRAMS
-
Full Auto Air Conditioning Circuit
FULL AUTO AIR CONDITIONING CIRCUIT
J/B
<TURBO, DOHC NON TURBO (CALIFORNIA)>
(CONTINUED)
(M&I$'URPOSE)
v
CIRCUIT
1
I
COMBINATION
s
3
1
D-42
2 D-15
IGNITIiN
POWER
TRANSISTOR
s
2
I
106 C-51
AIR
COtiITIONING
lx
lx
COMPRESSOR LOCK
CONTROLLER
h
A3
hl
GND
(
iNI:
V
V
-
14
.
.
?
t
-
I
.
-I
?
f
$1
c-49
-
4
f
DRIVE BELT
SLIP SIGNAL
INPUT CIRCUIT
1
AIR
&&LONER
UNIT

Table of Contents

Related product manuals