EasyManua.ls Logo

Dodge Stealth 1994 - Page 187

Dodge Stealth 1994
434 pages
Print Icon
To Next Page IconTo Next Page
To Next Page IconTo Next Page
To Previous Page IconTo Previous Page
To Previous Page IconTo Previous Page
Loading...
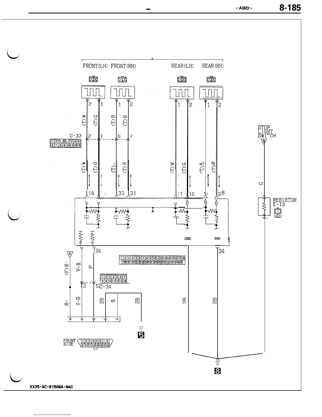
CIRCUIT DIAGRAMS
-
Anti-lock Braking System (ABS) Circuit
<AWD>
8-185
L
SPEED SENSOR
I
h
\
FRONT(LH)
FRONTCRH)
REARtLH)
REAR(RH)
A-29 A-12 E-19
E-16
@J
m
m
Qig
3
:
,
/
1
A‘
-r
i
-L-
a:
c
t
30
VW
m
5
I
15
133
131
I~
A A A A A
ii
-
VI4
B
ST01
M
-r-
ABS
CONTROL
UNIT
L
GND
GND
(
v
-....A
-
c
j4
?
v
23
.+24
E-12
m
A
g:
a
g >
0
pj%q
2~--::12
m
[1:
d:
&
cl.
3 m G
168
7
4
5
+
"
+
"
v)
a
DATA LINK
A
CONNECTOR
c-79
Pm
L
KX35-AC-R1500A-R4C

Table of Contents

Related product manuals