EasyManua.ls Logo

Dodge Stealth 1994 - Page 205

Dodge Stealth 1994
434 pages
Print Icon
To Next Page IconTo Next Page
To Next Page IconTo Next Page
To Previous Page IconTo Previous Page
To Previous Page IconTo Previous Page
Loading...
CIRCUIT DIAGRAMS
-
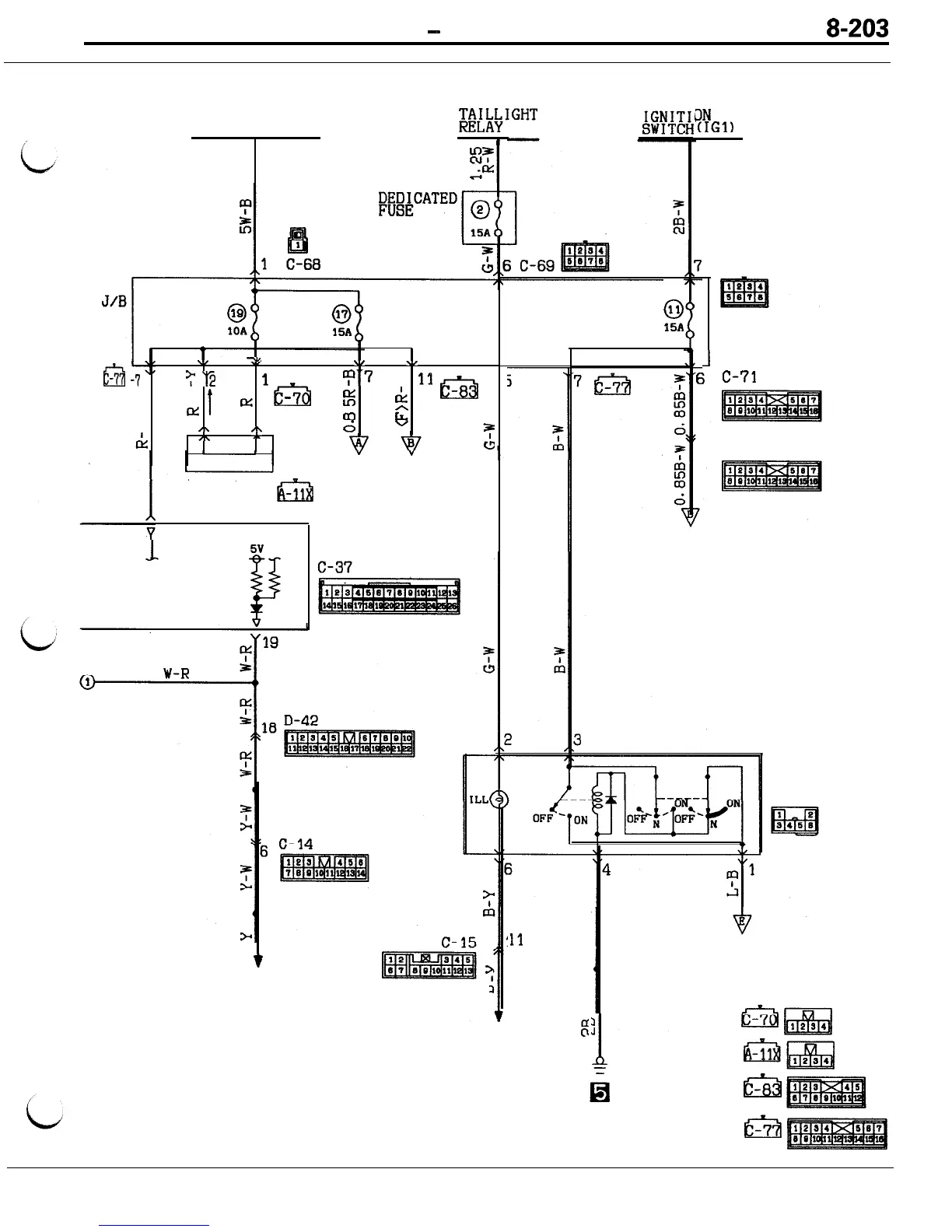
Auto-cruise Control Circuit <M/T>
8-203
3N
(IGl)
zAk;IGHT
I
FUSIBLE LINK@
C-82
1
_I
6
c-71
0
15A
., \/
\I
\I
---
-’
---
--------
c
-7
2
?
ā€˜2
1
cp?
m
11
DC
t
m
[1:
-
i5
&
-
lzal
00
iz
m
I\
4;
d
NM
3
c;.
,\
CL
6 D-44
IOD OR
STORAGE
-1
Ia
16 CONNECTOR
AUTO-CRUISE
CONTROL UNIT
1
5V
F
MAIN
SWITCH
D-32
t
SPEED
SENSOR
m
11
?
a
RHEOSTAT
:
1
6
Gqi&q
la
-8
Ia
-7

Table of Contents

Related product manuals