EasyManua.ls Logo

Dodge Stealth 1994 - Page 209

Dodge Stealth 1994
434 pages
Print Icon
To Next Page IconTo Next Page
To Next Page IconTo Next Page
To Previous Page IconTo Previous Page
To Previous Page IconTo Previous Page
Loading...
CIRCUIT DIAGRAMS
-
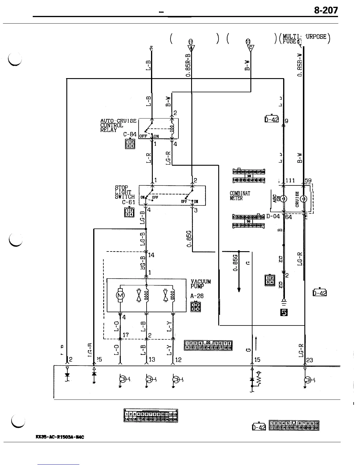
Auto-cruise Control Circuit <A/T>
8-207
MAIN
(
J/B
J/B
SW ITCH
MULTI-PURPOSE
FUSE
@I
>
(
MULTI-PURPOSE
FUSE
0
I(
J/B
.I%&
,E
1
cp
?
7
J
2
m
d
m
5:
.!I
CL
3
,,2
,\
/\
4
‘URPOSE
>
m
4
-------___
D-05
E$WBkNAT
I ON
uz
$0
1
I
I
I
-:
i7
m
5
---------__
t
m
l4
&
7
t2
co
6
L
i
r
I
2
d
d
T
1
A
I
I
M
I
b
rrl
44
I
12
I
I
?‘4
\I
.I.
‘3
2
1
al
I
STOP
LIGHT
a4
I
7
m
I
?-
:_--~rl?_---~?__---~
L
a
6 C-02
i
D-41
i
0
m
>
+!I
Ll
4
L:
e
!5
1
26
113
112
I
a
-4
IT
d
,:
P
c
AUTO-CRUISE
c-37
I
CONTROL UNIT

Table of Contents

Related product manuals