EasyManua.ls Logo

Dodge Stealth 1994 - Page 224

Dodge Stealth 1994
434 pages
Print Icon
To Next Page IconTo Next Page
To Next Page IconTo Next Page
To Previous Page IconTo Previous Page
To Previous Page IconTo Previous Page
Loading...
IGNITION
SWITCH
(IGl)
-
I
2%
El
--I
3
1134
56711
?
u
R
7
m
C-62
J/B
c-01
~316
C-71
3
c;
0
I
3
Cl
f
EfE;NAT’ON
D-05
I3
1
B-17
1
2
B-18ml
____----------
-Liz7
iYYsi!s
0
(B
--I
COIL
2
1
A
I
I
r
z
GENEARATOR
8-222
<DOHC>
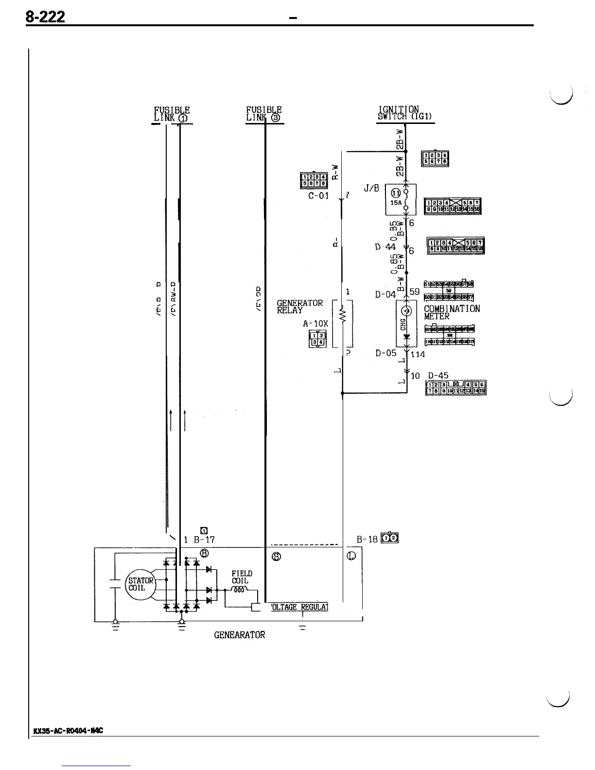
ENGINE ELECTRICAL
-
Charging System
6
.
‘d
Kxss-AC-Ro404-114c

Table of Contents

Related product manuals