EasyManua.ls Logo

Dodge Stealth 1994 - Page 292

Dodge Stealth 1994
434 pages
Print Icon
To Next Page IconTo Next Page
To Next Page IconTo Next Page
To Previous Page IconTo Previous Page
To Previous Page IconTo Previous Page
Loading...
8-290
CHASSIS ELECTRICAL
-
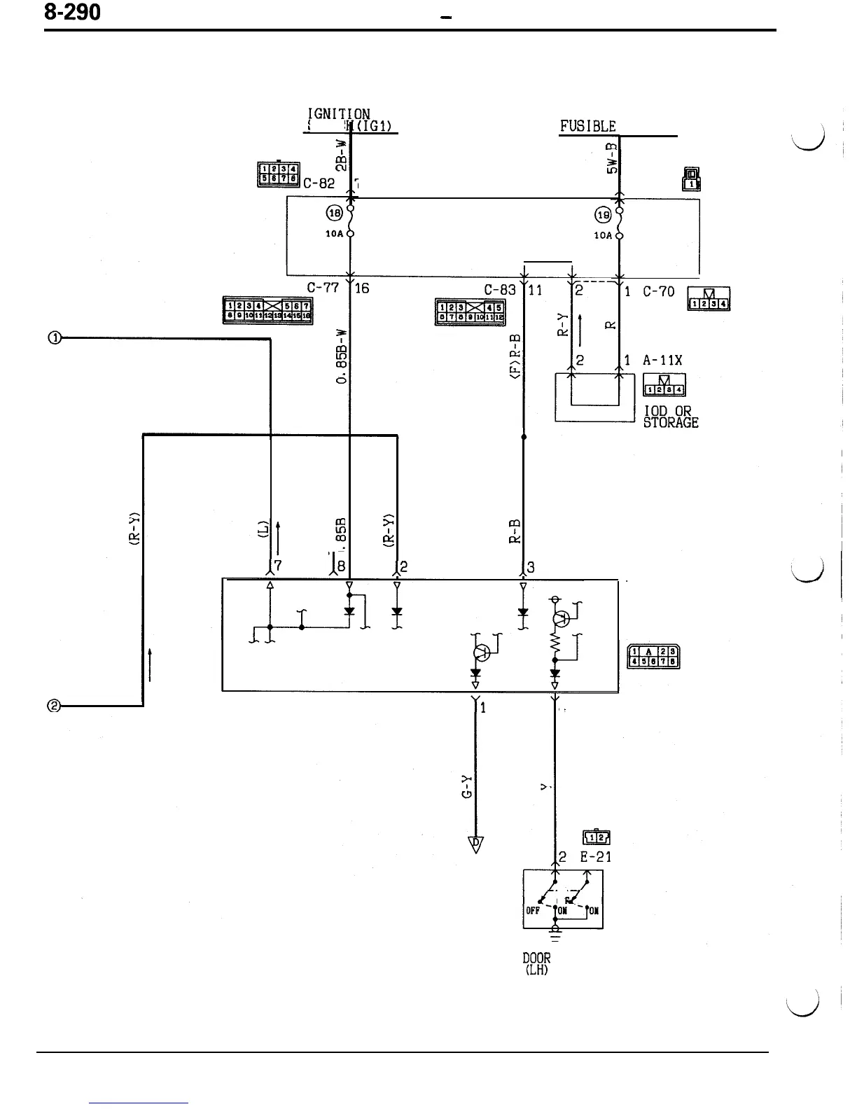
Lighting System
HEADLIGHT CIRCUIT (VEHICLES FOR U.S.) <VEHICLES WITHOUT THEFT-ALARM SYSTEM>
(CONTINUED)
IGNIT
SWITC
7
Et
#Gil
FUSIBLI
0
63
10A
LINK@
I!5
1 C-68
'
7
J/B
5
I
I
I
?
T
I
c5
CY
A7
18
,,2
,3
CONNECTOR
LIGHT
AUTOMATIC
SHUT-OFF
UNIT
E-17
1
4
--
OF
fCIp
SWITCH

Table of Contents

Related product manuals