EasyManua.ls Logo

Dodge Stealth 1994 - Page 304

Dodge Stealth 1994
434 pages
Print Icon
To Next Page IconTo Next Page
To Next Page IconTo Next Page
To Previous Page IconTo Previous Page
To Previous Page IconTo Previous Page
Loading...
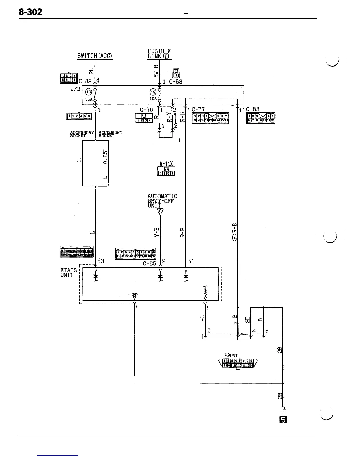
8-302
CHASSIS ELECTRICAL
-
Liahtina Svstem
<VEHICLES WITH THEFT-ALARM SYSTEM> (CONTINUED)
I
C-80
“1
)fT-Fmmq
c-70
‘ly2
,“l
lizi
04
1234
d:
&
t
WITHOUT WITH
,,l
,?
$E¶;ORY
MXX~~ORY
I
'I-z
1
*
I I
C-66
I
I
ii+
IOD OR
m
STORAGE
CONNECTOR
d
A-11X
1234
J
li55!d
1
LIGHT
i%ww
UNIT-
53
IGNITION
SWITCHtACC)
llC-83
51
---------
1
-----I
I
L----------------
---------------------
----I
59
I
54
Y
I
m
16
-
DATA LINK CONNECTOR
m
c-79
k-3
FRONT
SIDE

Table of Contents

Related product manuals