EasyManua.ls Logo

Dodge Stealth 1994 - Page 372

Dodge Stealth 1994
434 pages
Print Icon
To Next Page IconTo Next Page
To Next Page IconTo Next Page
To Previous Page IconTo Previous Page
To Previous Page IconTo Previous Page
Loading...
8-370
CHASSIS ELECTRICAL
-
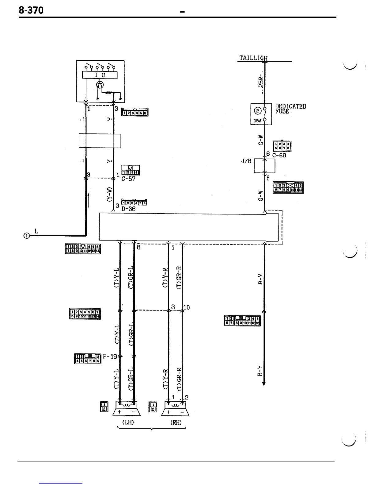
Radio and Tape Player
<RADIO AND TAPE PLAYER (WITHOUT AMPLIFIER)> (CONTINUED)
RADIO REMOTE
CONTROL SW ITCH
CLOCK
SPRING
TAILLIE
5
I
2
RADIO AND TAPE PLAYER
D-47
c-34
'?
>
c
plgi%QF-‘9
F-33
---
2
9
3
E
13
---
-i
3
E
---
2
-:
fs
c
I
------_,
0
6
-------_
I
2 F-06
--
---
7
-_---~~--~_---~~_-~~~~-
I 7
g:
g:
I
I.-
e
f3
?
E
.
a
3
10
c-15
4
---1
1
I
I
I
I
.---
-I
12
11
RHEOSTAT
T RELAY
5
C-83
(LH)-
(RH)
L
t
/
REAR
SPEAKER

Table of Contents

Related product manuals