EasyManua.ls Logo

Dodge Stealth 1994 - Page 80

Dodge Stealth 1994
434 pages
Print Icon
To Next Page IconTo Next Page
To Next Page IconTo Next Page
To Previous Page IconTo Previous Page
To Previous Page IconTo Previous Page
Loading...
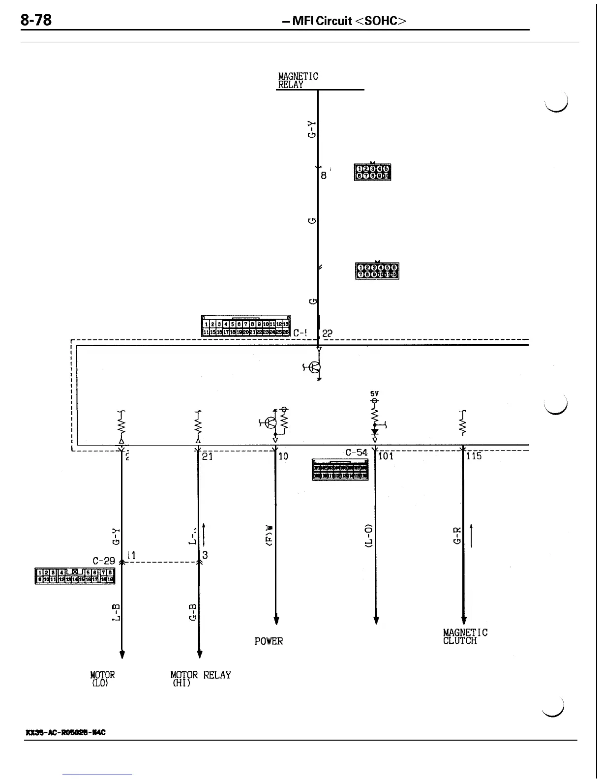
CIRCUIT DIAGRAMS
-
MFI
Circuit
<SOHC>
MFI CIRCUIT <SOHC> (CALIFORNIA) (CONTINUED)
EM&TIC
CLUTCH
.I
A-36
El'
6
6
A-67
E3
52
2;
_--
-.
)
________________--------------------
c
c
I
-
A
v
-
:
I
b
I
1
0
!I
t
-------------
'0
a
I
,:
u
c!
3
c
RADIATOR FAN RADIATOR FAN
h#R
RELAY
~~PR
RELAY
IGNITION
AIR
POWER
CONDITIONING
TRANSISTOR
CONTROL UNIT

Table of Contents

Related product manuals