EasyManua.ls Logo

Dodge Stealth 1994 - Page 91

Dodge Stealth 1994
434 pages
Print Icon
To Next Page IconTo Next Page
To Next Page IconTo Next Page
To Previous Page IconTo Previous Page
To Previous Page IconTo Previous Page
Loading...
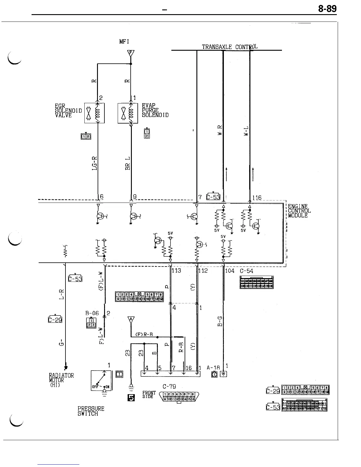
CIRCUIT DIAGRAMS
-
MFI Circuit <DOHC NON TURBO>
MFI
RELAY
AUTMATIC
IL
MODULE
i
IY
p:
f&iOlD
1
f
I[
~#&,,,
\,
\/
A-21
,
1
\<
2
A-20
3
I
EEiJ
n
1
2
Y
+.I
I
2
iz
--___-------------
---------
------__----------
Y6
Y9
a:
s
59
I
I
I
I
I
I
I
I
I
I
I
I
\
ai
-2
m
J
--___-------------_
53
c
~ 107
-5
A
I
G
I
cl
iz
"I
B-38
1
RADIATOR
FAN
h!fiTPR
RELAY
DATA LINK CONNECTOR
IGNITION
TIMING
ADJUSTMENT
CONNECTOR
63
-2
POWER STEERING
g$fV?giRE
0
-5
c-29
3
-
cc
CL
/
L/

Table of Contents

Related product manuals