EasyManua.ls Logo

ESAB 100i - Page 237

ESAB 100i
254 pages
Print Icon
To Next Page IconTo Next Page
To Next Page IconTo Next Page
To Previous Page IconTo Previous Page
To Previous Page IconTo Previous Page
Loading...
100i / 200i / 300i / 400i
Manual PN: 0560956430 APPENDIX A-13
Art # A-11972_AD
Art # A-11972_AD
1
1
2
2
3
3
4
4
5
5
6
6
7
7
8
8
9
9
10
10
F
F
E
E
D
D
C
C
B
B
A
A
Rev
Revision
By
Date
Rev
Revision
By
Date
042X1349
C
1 2
10/05/2012
DAT
Drawn
Date
Sheet
of
Size
Drawing Number
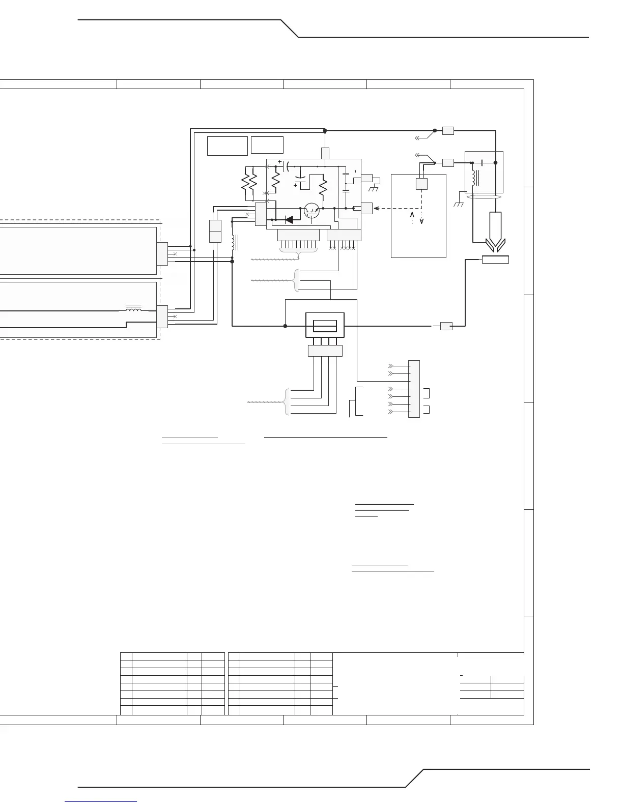
SCHEMATIC
Ultra-Cut XT 100A 480V
Title
12/16/2014
Date Printed
Date Revised
11/20/2014
00 Initial Design DAT 10/03/2012
1
J43
ELECTRODE
1
J44
EARTH GROUND
1
2
3
4
5
6
7
8
9
10
J42
TO RELAY BOARD
1
2
3
4
Hall Effect Sensor
HCT1
W1A
W1B
W1C
1
2
J105B
AC INPUT
1
2
J104A
1
2
J103A
1
2
J104B
1
2
J103B
1
2
J105A
AC INPUT
INVERTER MODULE (IM) #1
1
2
3
4
5
J102B
OUTPUT
1
2
3
4
5
J102A
OUTPUT
PILOT PCB
ELECTRODE (-)
ELECTRODE (-)
WORK (+)
10 ckt Ribbon
TO J3 on RELAY PCB
+15 VDC
-15 VDC
COMMON
SIG (+)
TO J1 on RELAY PCB
TO CCM
CPU PCB J31
TO CCM
CPU PCB J32
IM #1 Section B (upper)
IM #1 Section A (lower)
J100 -- 30 CKT RIBBON
1
2
3
4
J16
TIP VOLTS
WORK
ARC VOLTS
To J24 on I-O PCB
18 AWG wire
b
oth in and out of
CB1
1
2
3
4
5
6
7
8
J45
TO I/O BOARD
019X501600
1
2
3
4
5
J40
INVERTER
AC 24V- Ret -TB4-1
AC 24V-TB4-2
AC 120V- Ret- TB4-3
AC 120V- TB4-4
ARC VOLTS (TORCH)
TIP VOLTS (PILOT)
WORK
120 VAC @ 100 ma.
24 VAC @ 1A
(3)
(2)
)32()1(
(24)
(23)
(23)
(24)
(24)
(25)
(25)
(55)
(53)
(49B)
(49A)
(51B)
(50)
(50)
(49)
(49)
(52)
(51)
(51)
(49)
(56)
(57)
(58)
(59)
(60)
(61)
(62)
(63)
(51)
(49)
SYSTEM BIAS SUPPLY PCB
+24VDC
GND
+ V
To J27 on CCM I/O PCB
TO J12
T1 PRIMARY
K1A
24 VDC
24 VDC
24 VDC_RET
24 VDC_RET
MISSING PHASE a
MISSING PHASE b
AC V HIGH a
AC V LOW a
AC V LOW b
AC V HIGH b
VAC_IDA a
/ VAC_IDA b
VAC_IDB a
/ VAC_IDB b
1
2
3
4
5
6
7
8
9
10
11
12
13
14
J62
480V-ID
400V-ID
208-230V-ID
COM
(29)
(30)
(31)
(32)
(33)
(34)
(35)
(36)
(37)
(38)
(39)
(40)
(41)
(42)
(43A)
(44A)
019X501900
K1B
1
2
3
4
5
6
7
8
9
10
11
12
J63
TO AUX TRANSFORMER
1
2
3
4
5
6
7
8
9
10
11
12
13
14
15
16
17
18
J60
AC INPUT
J63 = Mini-Fit Jr goes to
J12 on T1 primary
400 VAC -- Single 18 AWG
in pins 1 & 12
480 VAC -- Single 18 AWG
in pins 1 & 12
230 VAC -- 18 AWG
wires in pins
1, 6, 7, 12
1
2
J46-F
1
2
J46-M
J100 -- 30 CKT RIBBON
WORK (+)
(48)
1
2
3
4
J61
VOLTAGE SELECTION
Wire #48 from J61-1 to:
J61-2 for 208-230 VAC
J61-3 for 400 VAC
J61-4 for 480 VAC
L1
(25)
1
L1
1
L2
1
L3
1
Earth
1 COMMON
2 /1TORCH START *
3 NA
4 /1TORCH GAS SOL ON *
5 /MAIN TORCH IDLE *
6 /1TORCH PRESS OK *
7 FLOW SENSOR (pulses)
8 LOW COOLANT FLOW
9 COOLANT LEVEL OK
10 COMMON
11 NA
12 /PLASMA ENABLE-HMI
13 /COOLANT PUMP ON
14 COMMON
15 /PILOT ENABLE
16 /RAS ON
17 /CONTACTORS ON
18 COMMON
19 /COOLANT FANS ON
20 /1TORCH CONTACTOR ON *
21 /PLASMA ENABLE RELAY
22 COMMON
23 PILOT CURRENT SIG-
24 NC
25 PILOT CURRENT SIG+
26 COMMON
27 WORK CURRENT SIG-
28 WORK CURRENT SIG+
29 NC
30 AMBIENT TEMP
31 COOLANT TEMP
* Used with 1 Torch Option
32 COMMON
33 -15 VDC
34 COMMON
35 24 VDC
36 COMMON
37 24 VDC
38 COMMON
39 24 VDC
40 COMMON
RI
BBON CABLE 40 ckt CCM (J23) - RELAY PCB (J4)
1,3,5,7 24 VDC
2,4,6,8 COMMON
9,10 NC
11-16 SERIAL DATA
1,2 24 VDC
3,4,7,10 COMMON
5 PILOT ENABLE +
6 PILOT ENABLE
8 PILOT CURRENT SIG
9 PILOT CURRENT SIG +
RIBBON CABLE 10 ckt
RELAY PCB (J3) – PILOT PCB (J42)
RIBBON CABLE 16 ckt
CCM ( J37) - DISPLAY
PCB (J17)
RIBBON CABLE 30 ckt.
CCM (J31& 32) - INVERTER (J100)
Component Locations (not including PCB components)
1
2
3
4
5
6
7
TB4
019X502700
019X502000
AC
SUPPRESSION
PCB
1
2
3
4
5
6
7
8
9
10
11
12
13
14
J50
AC LINE
GND
1
2
3
4
J52
INTERNAL AC INDICATOR
1
2
3
4
J51
PANEL AC INDICATOR
LT1
LT2
019X504000
(3)
(2)
(1)
(10)
(11)
(12)
(13)
LT1 & LT2
INPUT POWER
N
EON INDICATORS
Rear Panel & Internal
(Sht 2, C3)
(Sht 2, C3)
(J10 Sht 2, B8)
(Sht 2, B9)
(Sht 2, D3)
(Sht 2, A5)
(Sht 2, A1)
(Sht 2, E3)
D3, RED, CAP
IMBALANCE
D4, GREEN, READY
D6, GREEN, -12V
D11, GREEN, +12VP
D13, GREEN, +12V
D1, RED, INV FLT
D14, RED, OVER TEMP
D24, GREEN, PWM ON
D32, RED, PRI OC
CONTROL PCB LEDS
CAP BIAS PCB LEDSMAIN PCB LEDS
230V 400V 480V ERR
/VAC_IDAb 0 1 0 1
/VAC_IDBb 0 0 1 1
Measure relative to TP1 (24VDC_RET)
"0" = 10-12V "1" = 24V
CB1
ON / OFF
(3-22)
16 A
(27A&B)
(26)
(28)
(27B)
8A, 500V, SB
F2
8A, 500V, SB
F1
(27A)
(86A)
(86B)
(85A)
(85B)
(1-20)
(2-21)
LEDS
D3, RED, MISSING PHASE
D4, RED, AC V HIGH
D14, RED, AC V LOW
D26, GREEN, +12V PRI
D30, GREEN, 24VDC
D44, GREEN, T1 ON
TEST POINTS
TP1 SECONDARY GND
TP2 24VDC
TP3 DC INPUT POSITIVE
TP4 VCC1
TP5 VCC2
TP6 GATE
TP7 PRIMARY GND
TP8 +12V PRIMARY
TP9 P ISOL GND
System Bias LEDs & Test Points
4102/61/9TADAA
CHASSIS GND
CHASSIS GND
CHASSIS GND
PILOT BOARD
LED'S
D2 PILOT ENABLE
D11 +5V
TEST POINTS
TP1 GND
TP2 PILOT GATE
TP3 +5V
o
b
g
w
C4 Capacitor, fan starting, 8uf 440VAC (Sht 2, E1)
CB1 Circuit Breaker /ON/OFF SW, 15A 480V
(Sht 1, E1)
CB2-4 Circuit Breaker, 5A, 250V (Sht 2, B3)
F1, 2 Fuse, 8A, 500V, S.B. (Sht 1,E1)
FAN1,2 Fan, Heat Exchanger , 230 VAC (Sht 2, D2)
FL1 Flow meter, pulse output (Sht 2, B2)
FS1 Flow SW, 0.5 GPM (3.8 lpm), N.O. (Sht 2, A2)
HCT1 Current Sensor, Hall Effect 200A,
Work Lead
(Sht 1, C8)
K1 Relay, 24VAC, Inrush Control, (Sht2, B9)
L1 Inductor, (Sht 1, B7)
L3-5 Toriod Core Common Mode Ind (Sht1 B8, B&C3)
LS1 Level Switch, Coolant Tank (Sht 2, A3)
LT1, LT2 Indicator, Neon, 250V, AC Volts Present
(Sht 1, B2 & C2)
M1 Motor, Pump, ½ hp 230VAC, 50/60 Hz, 1Ph
(Sht 2, C2)
MC1 Relay, 120VAC, Inrush, coil (Sht2, B9)
conta
ct (Sht2, A1)
MC2 Relay, 120 VAC, Fan
Control, coil
(Coil at Sht 2, A7)(Contacts at Sht 2, D1)
MC3 Relay, 120 VAC, Pump Motor Control, coil
(Coil at Sht 2, A7)(Contacts at Sht 2, C1)
R2 Inrush, 4.7 Ohm, 30W (Sht2, A1)
R3,4 Ext RC, 100 ohm 55W (Sht1, A7)
SA1-3 Snubber, Contactor & Relay coils
(Sht 2, A8 & A9)
T1 Aux Transforme
r (Sht 2, B2)
TB4 Terminal Block (Sht 1, C9)
TS1 Tem
perature Sensor, NTC, Coolant Return
(Sht 2, A5)
TS2 Temperature Sensor, NTC, Ambient (Sht 2, A5)
W1 Contactor , Input (Coil Sht 2, A8), (Contacts C2)
1 READY +
2 READY -
3 INVERTER_FLT +
4 INVERTER_FLT -
5 OVERTEMP_FLT +
6 OVERTEMP_FLT -
7 PWR_PRESENT +
8 PWR_PRESENT -
9 OUT_COM (+3 to 5VDC)
10 VAC_SELA
11 VAC_SELB
12 IS_IDA
13 IS_IDB
14 IS_IDC
15 ENABLE +
16 ENABLE -
17 START2 +
18 START2 -
19 SPARE
20 SYNC_IN +
21 SYNC_IN -
22 NC
23 NC
24 47 OHM to COMM
25
DEMAND +
26 DEMAND -
27 47 OHM to COMM
28 CURRENT +
29 CURRENT -
30 47 OHM to COMM
J58A
J58C
R3 & R4
DAT 10/17/2014AB ECO-B2687
Work
Tip
Electrode
(+)
(+)
(-)
RAS
1
TORCH
CHASSIS GND
1
2
J41 (J87)
(52)
To TB4-6
TIP
TORCH
To TB4-7
1
PILOT
1
WORK
TORCH
TIP
(Sht 1, A9)
(Sht 1, A9)
To / From Optional
1 Torch Module
(Refer to 1 Torch
section for details.)
1
2
J41
TIP

Table of Contents

Other manuals for ESAB 100i

Related product manuals