EasyManua.ls Logo

ESAB 100i - Torch Specifications

ESAB 100i
254 pages
Print Icon
To Next Page IconTo Next Page
To Next Page IconTo Next Page
To Previous Page IconTo Previous Page
To Previous Page IconTo Previous Page
Loading...
100i / 200i / 300i / 400i
Manual PN: 0560956430 SPECIFICATIONS 29
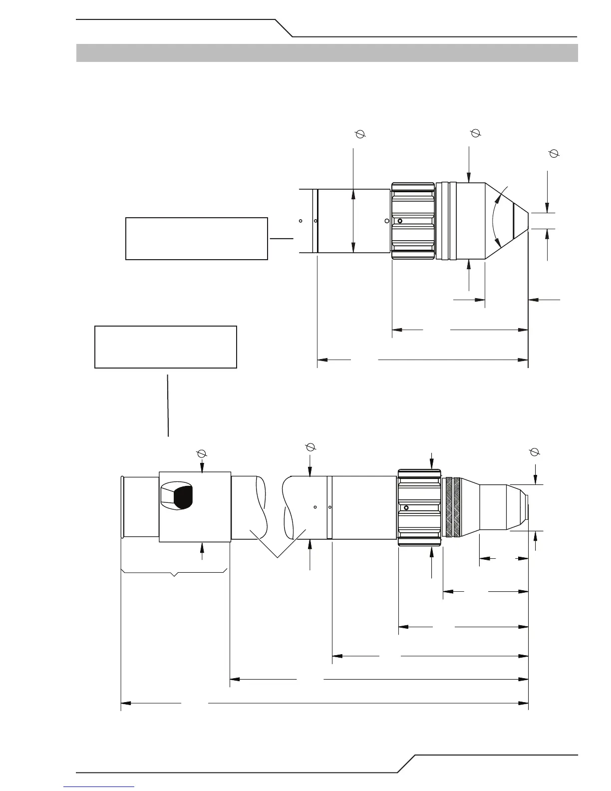
2.11 Torch Specifications
A. Torch Dimensions
.5”
12.7 mm
2.4”
61 mm
2”
50.8 m
m
1.4”
34.5 mm
70°
4.3”
109.1 mm
6.6”
168.5 mm
Art # A-09534
2.25"
57.15 mm
2.0"
50.8 mm
2.4"
61 mm
1.49"
37.8 mm
19"
482.7 mm
15.5"
393.8 mm
2.7"
69.6 mm
1.6"
40. mm
3.98"
101.1 mm
6.3"
160.1 mm
Mounting Tube
End Cap
Basic 100 Amp torch dimensions
Basic 400 Amp torch dimensions

Table of Contents

Other manuals for ESAB 100i

Related product manuals