EasyManua.ls Logo

EWM PHOENIX 421 EXPERT forceArc - Page 134

EWM PHOENIX 421 EXPERT forceArc
146 pages
Print Icon
To Next Page IconTo Next Page
To Next Page IconTo Next Page
To Previous Page IconTo Previous Page
To Previous Page IconTo Previous Page
Loading...
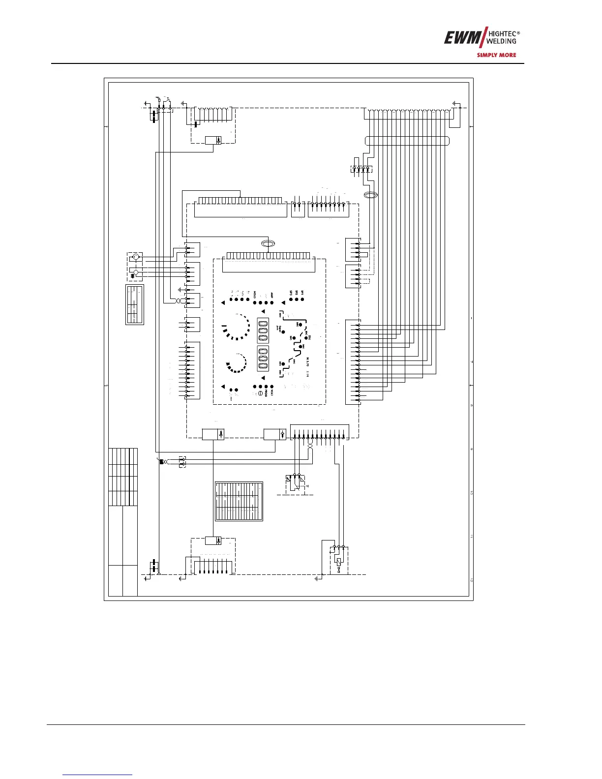
Circuit diagrams
PHOENIX DRIVE 4; 4L; PHOENIX EXPERT DRIVE 4; 4L
134 Item No.: 099-004833-EWM01
1
Motor+
2
Motor-
3
?T
4
?T
A
B
C
D
E
F
G
H
J
K
L
M
N
P
R
S
T
U
V
T?
LED-A
+10V
DV(UP)
0V
BRT
US(DOWN)
LED-G
LED-D
LED-E
CODE UP
LED-B
LED-C
CODE DV
CODE US
BRT
LED-F
Motor-
Motor+
X1-
1
1
1
1
Ringkern
Ringkern
1
+10V
2
LED-A
3
LED-B
4
LED-C
5
LED-D
6
LED-E
7
LED-F
8
LED-G
9
BRT
10
0V
11
US(DOWN)
12
DV(UP)
13
NC
14
CODE UP
15
CODE US
16
CODE DV
17
NC
18
BRT
T?
1
PE-
1
Motor
2
Motor
1
Tacho
2
Tacho
3
Tacho
2x2n2F
BT
X10-
Zentralanschluß
1
2
2
BRT
1
BRT
M
T
br bl swsw rt
Drahtvorschub
M1-
1
M1-
2
M1-
3
M1-
4
M1-
5
M1-
T?
PE1
1
+5V
2
0V
2x2n2F
PE_Dyn.
15polig
D-SUB
VP5/3D
Stecker X2
Schirm
0V
RS+12V
TXD
RXD
RSGND
42V
X1/7
X1/6
X1/5
X1/4
X1/3
X1/2
X1/1
A4-
1
+5V
2
digi. Gaswächter
3
PE-Überwachung
4
digi. Wasserwächter
5
Res. Ausgang1
6
Res. Ausgang2
7
0V
8
ana. Gaswächter
9
PE-Überwachung
10
ana. Wasserwächter
11
Res. Ausgang3
12
Res. Ausgang4
VP5/1D
42V
RSGND
RXD
TXD
0V
Schirm
RS+12V
X1/7
X1/6
X1/5
X1/4
X1/3
X1/2
X1/1
D-SUB
15polig
Stecker X2
2n2F
A3-
1
F1-
2
F1-
8
IGR0
9
IGR0
1
0VAC
2
0VAC
3
Gas
4
digi. Eingang Res.
5
digi. Eingang Res.
6
0V
7
0V
10
Gasventil2
11
Up/Down
12
Programm
1
2
PE
Y1-
Gas
T?
1
PE2-
PE
A7-
PE_Dyn.
1
PE3-
PE
PE_Dyn.
Rückseite
Frontseite
PIN 1
PIN 2
PIN 3
PIN 4
PIN 5
PIN 6
PIN 7
PIN 8
PIN 9
PIN 10
PIN 11
PIN 12
PIN 13
PIN 14
PIN 15
TXD
RS+12V
42V
42V
0V42
0V42
NC
PE
RXD
RSGND
42V
NC
0V42
NC
PE
rt
bl
vi
ro/gr
bl/rt
ge
sw
ws
br
gn
Pin-Belegung D-Sub 15polig
1
PE4-
PE
PE
A5-
S1-
2
2
1
1
Innenblech
1
Gastest2
2
Ausfädeln
3
digi. Res1
4
ana.Res
5
Gastest2 (0V)
6
Ausfädeln (0V)
7
digi. Res2
8
ana. Res
1
?T
2
?T
4-Wdg.
X3-
21
?T
?T
?T
?T
1
2
3
4
X2-
?T
?T
?T
?T
?T
?T
?T
?T
rotschwarzDrive 4
rot
Drive 4L
schwarz
Motoranschluß Drive 4-4L
Anschluß 21
12
15polig
D-Sub.
X1/10
X1/11
X1/12
X1/13
X1/14
X1/15
X1/16
X1/17
X1/18
X1/19
X1/20
X1/21
X1/22
X1/23
X1/24
X1/25
X1/1
X1/2
X1/3
X1/4
X1/5
X1/6
X1/7
X1/8
X1/9
X1/26
X1
Frontplatte
X10/2
X10/3
X10/4
X10/1
PE
X3/1
X3/2
X3
BRT
Systembus
X8
X1/10
X1/11
X1/12
X1/13
X1/14
X1/15
X1/16
X1/17
X1/18
X1/19
X1/20
X1/21
X1/22
X1/23
X1/24
X1/25
X1/1
X1/2
X1/3
X1/4
X1/5
X1/6
X1/7
X1/8
X1/9
X1/26
Ringkern
A2-
M 3 7 0 / 2
X5/12
X5/11
X5/10
X5/9
X5/8
X5/7
X5/6
X5/5
X5/4
X5/3
X5/2
X5/1
Gas/Schalter
X5
Systembus
15polig
D-Sub.
X11
X1
Frontplatte
Tacho
X10
X23
Zwischentrieb
X2X24
X24/1
X24/2
X24/3
X24/4
X23/1
X23/2
X23/3
X23/4
Fernregler
X2/1
X2/2
X2/3
X2/4
X2/5
X2/6
X2/7
X2/8
X2/9
X2/10
X2/11
X2/12
X2/13
X2/14
X2/15
X2/16
X2/17
X2/18
Push-Pull
M 3 7 0 / 1
X18
Peripherie1
X18/1
X18/2
X18/3
X18/4
X18/5
X18/6
X18/7
X18/8
X16/1
X16/2
ext. Motorversorgung
X16
A1-
X20/1
X20/2
Koffer-Motor
X20 X19
X19/1
X19/2
Gas/Wasserversorg.
X17/2
X17/3
X17/4
X17/1
X17/5
X17/6
X17/8
X17/9
X17/10
X17/7
X17/11
X17/12
X17
Peripherie2
1
Motor+
2
Motor-
3
?T
4
?T
A
B
C
D
E
F
G
H
J
K
L
M
N
P
R
S
T
U
V
T?
LED-A
+10V
DV(UP)
0V
BRT
US(DOWN)
LED-G
LED-D
LED-E
CODE UP
LED-B
LED-C
CODE DV
CODE US
BRT
LED-F
Motor-
Motor+
X1-
1
1
1
1
Ringkern
Ringkern
1
+10V
2
LED-A
3
LED-B
4
LED-C
5
LED-D
6
LED-E
7
LED-F
8
LED-G
9
BRT
10
0V
11
US(DOWN)
12
DV(UP)
13
NC
14
CODE UP
15
CODE US
16
CODE DV
17
NC
18
BRT
T?
1
PE-
1
Motor
2
Motor
1
Tacho
2
Tacho
3
Tacho
2x2n2F
BT
X10-
Zentralanschluß
1
2
2
BRT
1
BRT
M
T
br bl swsw rt
Drahtvorschub
M1-
1
M1-
2
M1-
3
M1-
4
M1-
5
M1-
T?
PE1
1
+5V
2
0V
2x2n2F
PE_Dyn.
15polig
D-SUB
VP5/3D
Stecker X2
Schirm
0V
RS+12V
TXD
RXD
RSGND
42V
X1/7
X1/6
X1/5
X1/4
X1/3
X1/2
X1/1
A4-
1
+5V
2
digi. Gaswächter
3
PE-Überwachung
4
digi. Wasserwächter
5
Res. Ausgang1
6
Res. Ausgang2
7
0V
8
ana. Gaswächter
9
PE-Überwachung
10
ana. Wasserwächter
11
Res. Ausgang3
12
Res. Ausgang4
VP5/1D
42V
RSGND
RXD
TXD
0V
Schirm
RS+12V
X1/7
X1/6
X1/5
X1/4
X1/3
X1/2
X1/1
D-SUB
15polig
Stecker X2
2n2F
A3-
1
F1-
2
F1-
8
IGR0
9
IGR0
1
0VAC
2
0VAC
3
Gas
4
digi. Eingang Res.
5
digi. Eingang Res.
6
0V
7
0V
10
Gasventil2
11
Up/Down
12
Programm
1
2
PE
Y1-
Gas
T?
1
PE2-
PE
A7-
PE_Dyn.
1
PE3-
PE
PE_Dyn.
Rückseite
Frontseite
PIN 1
PIN 2
PIN 3
PIN 4
PIN 5
PIN 6
PIN 7
PIN 8
PIN 9
PIN 10
PIN 11
PIN 12
PIN 13
PIN 14
PIN 15
TXD
RS+12V
42V
42V
0V42
0V42
NC
PE
RXD
RSGND
42V
NC
0V42
NC
PE
rt
bl
vi
ro/gr
bl/rt
ge
sw
ws
br
gn
Pin-Belegung D-Sub 15polig
1
PE4-
PE
PE
A5-
S1-
2
2
1
1
Innenblech
1
Gastest2
2
Ausfädeln
3
digi. Res1
4
ana.Res
5
Gastest2 (0V)
6
Ausfädeln (0V)
7
digi. Res2
8
ana. Res
1
?T
2
?T
4-Wdg.
X3-
21
?T
?T
?T
?T
1
2
3
4
X2-
?T
?T
?T
?T
?T
?T
?T
?T
rotschwarzDrive 4
rot
Drive 4L
schwarz
Motoranschluß Drive 4-4L
Anschluß 21
12
15polig
D-Sub.
X1/10
X1/11
X1/12
X1/13
X1/14
X1/15
X1/16
X1/17
X1/18
X1/19
X1/20
X1/21
X1/22
X1/23
X1/24
X1/25
X1/1
X1/2
X1/3
X1/4
X1/5
X1/6
X1/7
X1/8
X1/9
X1/26
X1
Frontplatte
X10/2
X10/3
X10/4
X10/1
PE
X3/1
X3/2
X3
BRT
Systembus
X8
X1/10
X1/11
X1/12
X1/13
X1/14
X1/15
X1/16
X1/17
X1/18
X1/19
X1/20
X1/21
X1/22
X1/23
X1/24
X1/25
X1/1
X1/2
X1/3
X1/4
X1/5
X1/6
X1/7
X1/8
X1/9
X1/26
Ringkern
A2-
M 3 7 0 / 2
X5/12
X5/11
X5/10
X5/9
X5/8
X5/7
X5/6
X5/5
X5/4
X5/3
X5/2
X5/1
Gas/Schalter
X5
Systembus
15polig
D-Sub.
X11
X1
Frontplatte
Tacho
X10
X23
Zwischentrieb
X2X24
X24/1
X24/2
X24/3
X24/4
X23/1
X23/2
X23/3
X23/4
Fernregler
X2/1
X2/2
X2/3
X2/4
X2/5
X2/6
X2/7
X2/8
X2/9
X2/10
X2/11
X2/12
X2/13
X2/14
X2/15
X2/16
X2/17
X2/18
Push-Pull
M 3 7 0 / 1
X18
Peripherie1
X18/1
X18/2
X18/3
X18/4
X18/5
X18/6
X18/7
X18/8
X16/1
X16/2
ext. Motorversorgung
X16
A1-
X20/1
X20/2
Koffer-Motor
X20 X19
X19/1
X19/2
Gas/Wasserversorg.
X17/2
X17/3
X17/4
X17/1
X17/5
X17/6
X17/8
X17/9
X17/10
X17/7
X17/11
X17/12
X17
Peripherie2
Datum: Name:
gezeichnet:
geprüft:
Freigabe:
Änderung-4:
Änderung-3:
Änderung-2:
Änderung-1:
16.12.2004 NIEDENTHAL
Blatt: /1
This drawing is protected by copyright.
It may not be reproduced or utilised in any way
or communicated or forwarded to third parties
without our express permission!
1
PHOENIX DRIVE 4/4L P
Z02109-00
Zeichnungsnummer:
MIG-DV-GERAET
Figure 11-11

Table of Contents

Related product manuals