EasyManua.ls Logo

EWM PHOENIX 421 EXPERT forceArc - PHOENIX 521 EXPERT Forcearc

EWM PHOENIX 421 EXPERT forceArc
146 pages
Print Icon
To Next Page IconTo Next Page
To Next Page IconTo Next Page
To Previous Page IconTo Previous Page
To Previous Page IconTo Previous Page
Loading...
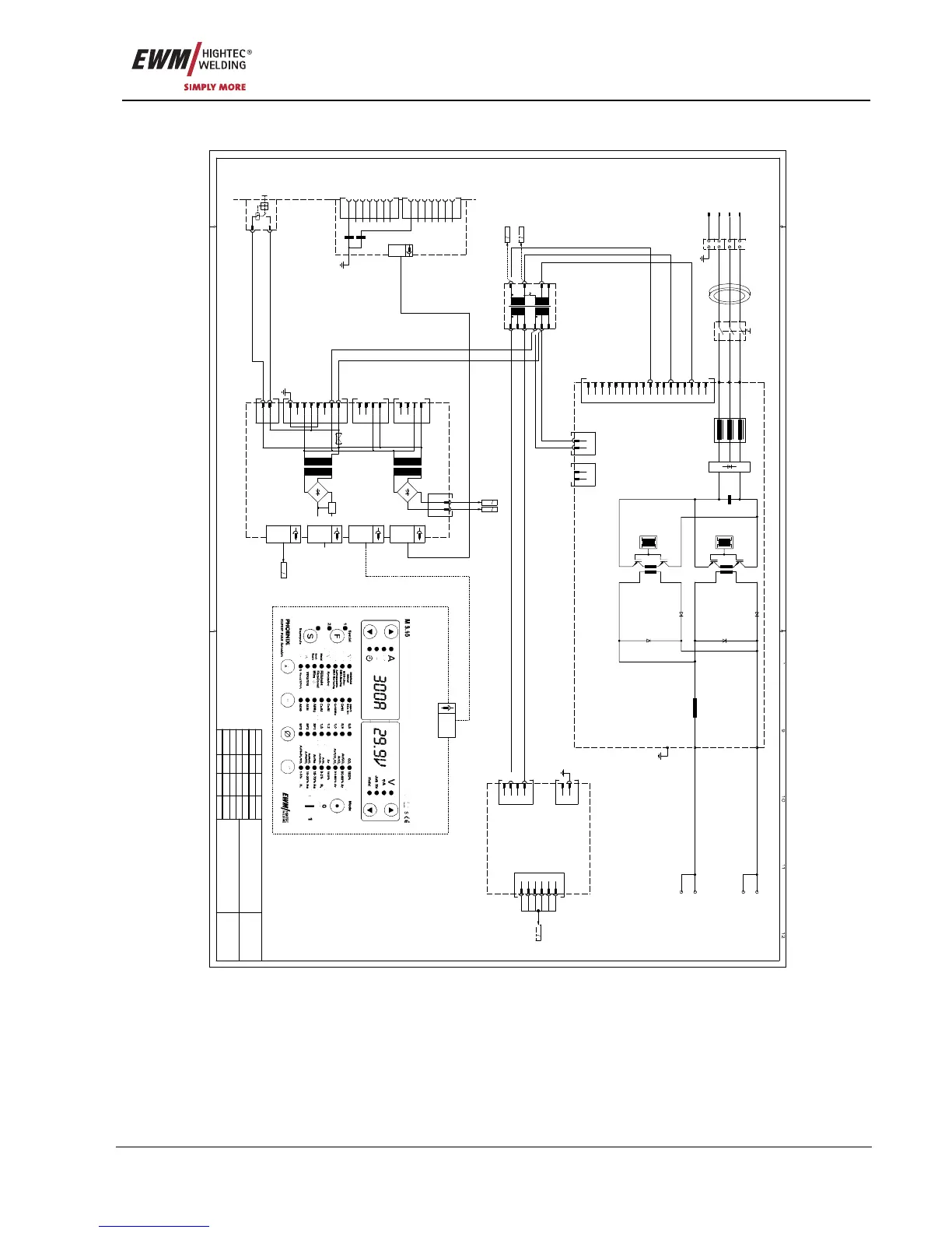
Circuit diagrams
PHOENIX 521 EXPERT forceArc
Item No.: 099-004833-EWM01 131
11.4 PHOENIX 521 EXPERT forceArc
A1-L1
A1-L2
A1-L3
Q1-
L1
L2
L3
T1
T2
T3
Xx-
L1
L2
L3
PE
L1
L2
L3
PE
X1-
L1
L2
L3
PE
Ringkern
n=3Wdg.
3
400VAC
6
230VAC
9
0VAC
6
400V/415V
1
42VAC
2
0VAC
1
Absicherung
2
Absicherung
PE2-
T?
1
1
?T
2
?T
15
42V
14
0V
9
0V
11
25V
4
230V
2
0V
A
2 6
B 2 6
1
42VAC
2
0VAC
1
2
4A
F1-
1
25VAC
3
0VAC
42V
RSGND
RXD
TXD
RS+12V
0V
Schirm X1/7
X1/6
X1/5
X1/4
X1/3
X1/2
X1/1
42V
RXD
RSGND
TXD
RS+12V
0V
Schirm X2/7
X2/6
X2/5
X2/4
X2/3
X2/2
X2/1
2x2n2F
Stecker X3
D-SUB
15polig
A2-
VP5/2D
Temp
105°C
8
6
4
2
16
14
15
11
9
T1-
10
-
+
X8/2
X8/1
15polig
D-Sub.
15polig
D-Sub.
15polig
D-Sub.
15polig
D-Sub.
X3/1
X3/2
X3/3
X3/4
X1/1
X1/2
X1/3
X1/4
X1/5
X1/6
X1/7
X1/8
T2
4AT
F1
T1
12V
W K - 6
A3-
X9/1
X9/2
X2/1
X2/2
X2/3
X2/4
X7
X6
X5
X4
62
F
1
Fühlerspg.
2
Fühlerspg.
2 8D
2 8E
A4-
LDC2
X2/1
X2/2
X2
X2/3
X2/4
X2/5
X2/6
X3/1
X3/2
X3
X1/1
X1/2
X1
X1/3
X1/4
1
+18V
2
+8V
3
0V
4
-18V
5
UD
6
0V
72C
D-Sub.
15polig
M 3 1 0
A7-
Ausführung EXPERT
Ausführung W assergekühlt
X7/10
X7/11
X7/12
X7/13
X7/14
X7/15
X7/16
X7/17
X7/18
X7/1
X7/2
X7/3
X7/4
X7/5
X7/6
X7/7
X7/8
X7/9
L1
L2
L3
PE
-
+
X5/1
X5/2
X5
X7
WIG
A1-
D C 5 2 1
X13/1
X13/2
X13
1
PE
1
PE
8
PE
1
PE
Datum: Na me:
gezeichnet:
geprüft:
Freigabe:
Änderung-4:
Änderung-3:
Änderung-2:
Änderung-1:
15.11.2006 N IEDENTHAL
Blatt: / 2
This drawing is protected by copyright.
It may not be reproduced or utilised in any way
or communicated or forwarded to third parties
without our express permission!
1
PHOENIX 521 PROG-EXP
4520-00
Zeichnungsnummer:
MIG-GERAET, 3X400V
Figure 11-8

Table of Contents

Related product manuals