EasyManua.ls Logo

GE PACSystems RX7i - Size of

GE PACSystems RX7i
469 pages
Print Icon
To Next Page IconTo Next Page
To Next Page IconTo Next Page
To Previous Page IconTo Previous Page
To Previous Page IconTo Previous Page
Loading...
Chapter 4. Ladder Diagram (LD) Programming
170 PACSystems* RX7i, RX3i and RSTi-EP CPU Programmer's Reference Manual GFK-2950C
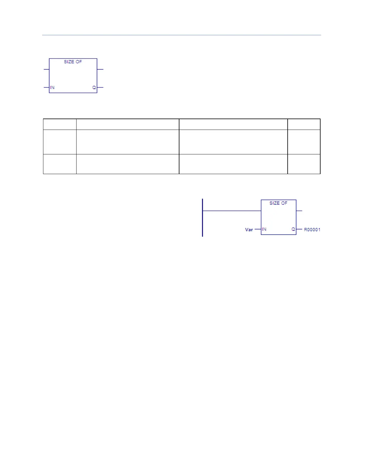
4.8.17 Size Of
Counts the number of bits used by the variable assigned to input
IN and writes the number of bits to output Q.
Mnemonics:
SIZE_OF
Operands
Parameter
Description
Allowed Operands
Optional
IN
The variable whose size in bits is
calculated.
Variable of any data type except BYTE
arrays in non-discrete memory and
double-segment structures.
No
Q
The number of bits used by the variable
assigned to input IN.
DINT or DWORD variable.
ST also supports INT and WORD variables.
No
Example
The single-segment structure named Var assigned to
input IN contains eight BOOL elements (8 × 1 = 8 bits)
and twelve WORD elements (12 × 16 = 192 bits).
SIZE_OF outputs the value 8 + 192 = 200 to the
variable R00001 assigned to output Q.

Table of Contents

Other manuals for GE PACSystems RX7i

Related product manuals