EasyManua.ls Logo

GE PACSystems RX7i - SVC_REQ 24: Reset Module

GE PACSystems RX7i
469 pages
Print Icon
To Next Page IconTo Next Page
To Next Page IconTo Next Page
To Previous Page IconTo Previous Page
To Previous Page IconTo Previous Page
Loading...
Chapter 6. Service Request Function
GFK-2950C February 2018 323
6.25 SVC_REQ 24: Reset Module
Use SVC_REQ 24 to reset a daughterboard or some modules. Modules that support SVC_REQ 24
include:
RX3i IC693BEM331, IC694BEM331, IC693APU300, IC694APU300, IC695ETM001, IC693ALG2222,
IC694ALG2222, IC695PNC001
RX7i: Embedded Ethernet Interface module, IC697BEM731, IC698BEM731, IC697HSC700,
IC697ALG230, IC698ETM001
The SVC_REQ output is set ON unless one of the following conditions exists:
- An invalid number for rack and/or slot is entered.
- There is no module at the specified location.
- The module at the specified location does not support a runtime reset.
- The CPU was unable to reset the module at the specified location.
For this function, the parameter block has a length of 1 word. It is an input parameter block only.
Address
Module slot (low byte)
Module rack (high byte)
Rack 0, Slot 1 indicates that a reset is to be sent to the daughterboard.
Note: It is important to invoke SVC_REQ #24 for a given module for only one sweep at a time. Each
time this function executes, the target module will be reset regardless of whether it has
finished starting up from a previous reset.
After sending a SVC_REQ #24 to a module, you must wait a minimum of 5 seconds before
sending another SVC_REQ #24 to the same module. This ensures that the module has time
to recover and complete its startup.
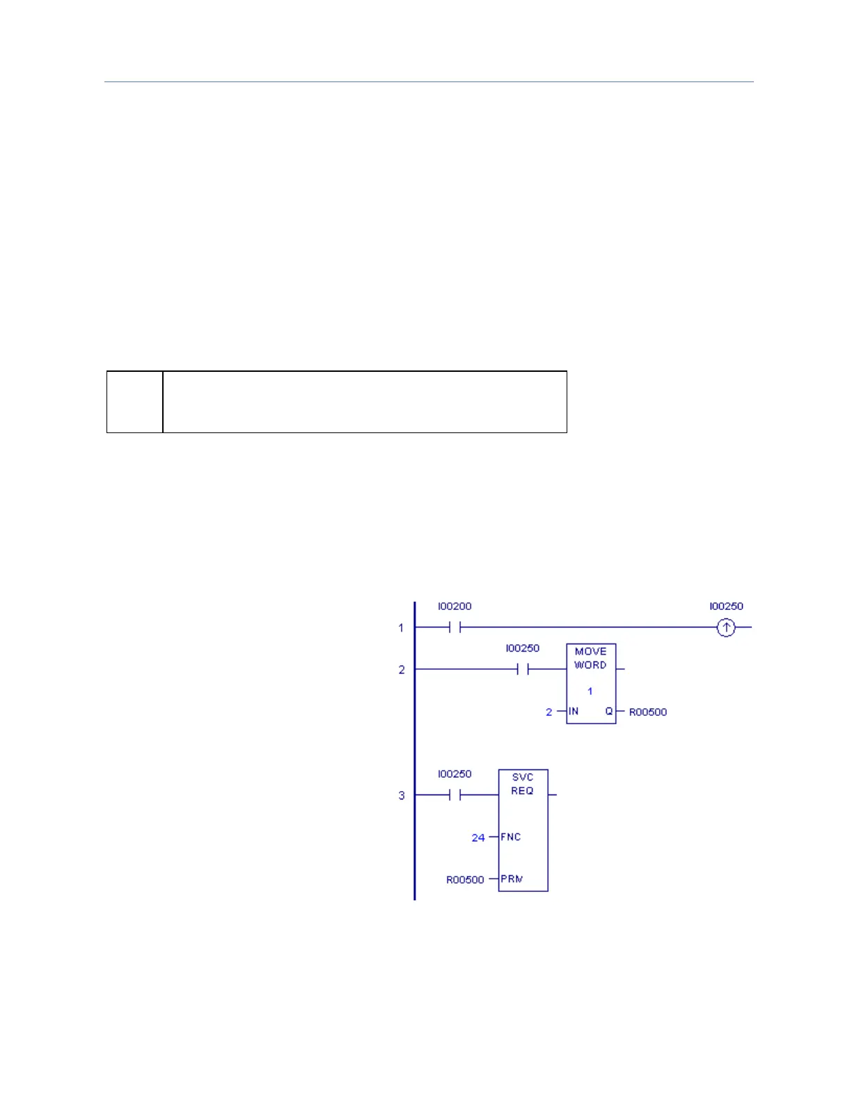
SVC_REQ 24 Example
This example resets the module in
rack0/slot 2.
In rung 1, when contact %I00200 is
closed, the positive transition coil sets
%I00250 to ON for one sweep.
The MOVE_WORD instruction in rung 2
receives power flow and moves the
value 2 into %R00500.
The SVC_REQ function in rung 3 then
receives power flow and resets the
module indicated by the rack/slot value
in %R00500.

Table of Contents

Other manuals for GE PACSystems RX7i

Related product manuals