EasyManua.ls Logo

gefran SIEIDrive ADV100 - Speed and Torque References

gefran SIEIDrive ADV100
112 pages
To Next Page IconTo Next Page
To Next Page IconTo Next Page
To Previous Page IconTo Previous Page
To Previous Page IconTo Previous Page
Loading...
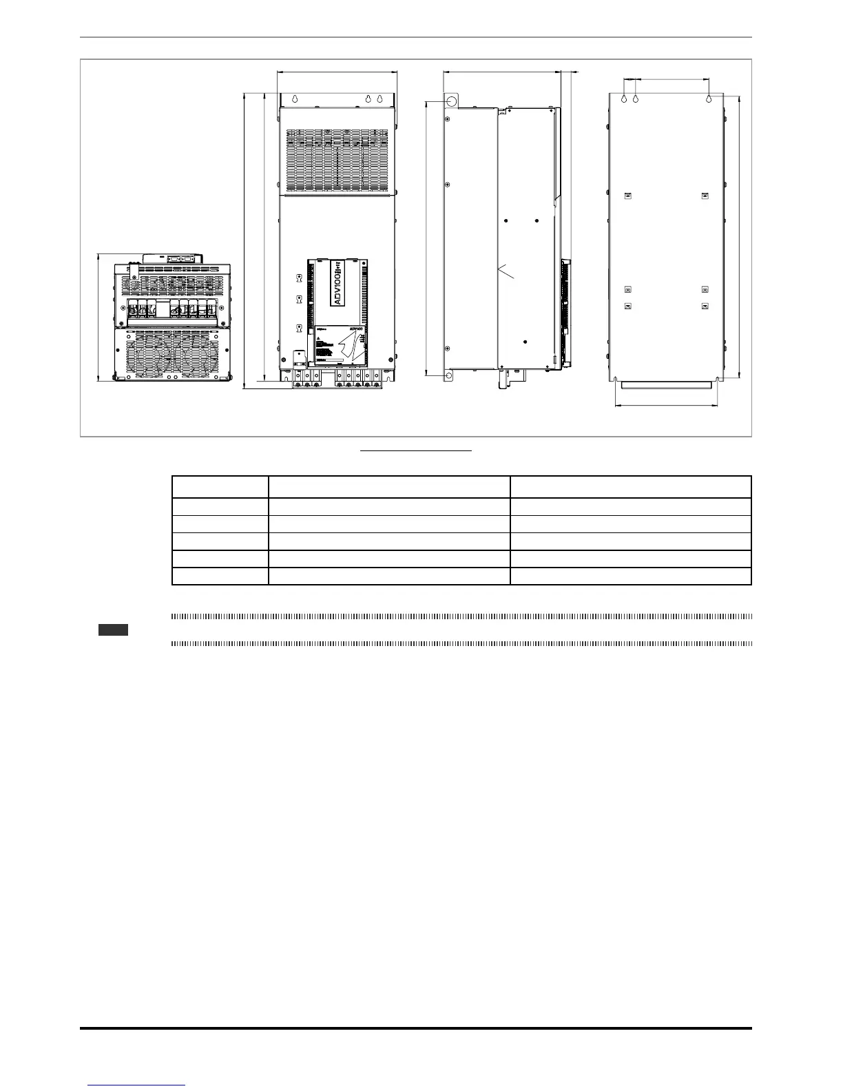
20 ADV100 • Quick installation guide - Specifications and connection
330.52
(13.01")
767
(30.2")
311 (12.24")
190 (7.48")30 (1.18")
265
(10.43")
730
(28.74")
304.1 (11.97") 26
710.5
(279.72")
1.6
mm (inches)
748
(29.4")
Figure 4.8.5: Size 5 dimensions
Size Weight (kg) Weight (lbs)
1040 - 1055 5,8 12,8
2075 - 2110 7,8 17,2
3150 ... 3220 10,5 23,15
4300 ... 4450 32 70,6
5550 ... 5900 60 132.28
Note! Weights referred to standard drive without keypad, no options, packaging not included.

Table of Contents

Other manuals for gefran SIEIDrive ADV100

Related product manuals