EasyManua.ls Logo

HP Apollo 4200 Gen9 - FBWC Module Backup Power Cabling

HP Apollo 4200 Gen9
193 pages
Print Icon
To Next Page IconTo Next Page
To Next Page IconTo Next Page
To Previous Page IconTo Previous Page
To Previous Page IconTo Previous Page
Loading...
Cabling 151
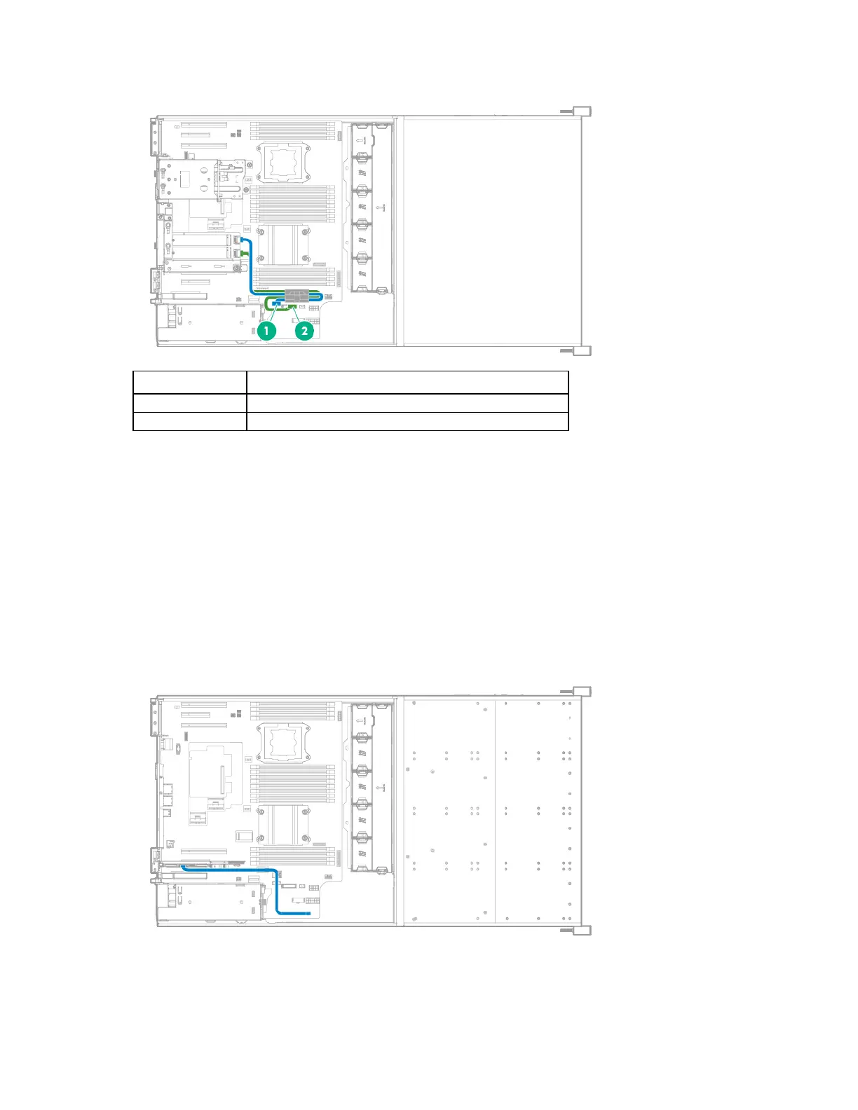
M.2 SSD cabling from the PCI riser cage
Item
Description
1
M.2 SSD 1 SATA cable
2
M.2 SSD 2 SATA cable
FBWC module backup power cabling
The FBWC solution is a separately purchased option. This server only supports FBWC module
installation ("Installing the storage controller and FBWC module options" on page 92) when a Smart Array
P-Series controller is installed.
Depending on the controller option installed, the actual storage controller connectors might look different
from what is shown in this section.
FBWC module backup power cabling from a standup, Smart Array P44x Controller installed in the
onboard PCIe3 x8 expansion slot 1
For clarity of the FBWC module backup power cabling connection, the cable management holder
image is removed from the illustration below.

Table of Contents

Other manuals for HP Apollo 4200 Gen9

Related product manuals