EasyManua.ls Logo

HPE ProLiant DL325 Gen10 Plus

HPE ProLiant DL325 Gen10 Plus
149 pages
To Next Page IconTo Next Page
To Next Page IconTo Next Page
To Previous Page IconTo Previous Page
To Previous Page IconTo Previous Page
Loading...
Cable color Description
Orange Mini-SAS cable from box 1 drive backplane port 1 to type-a controller port 1
Blue Mini-SAS cable from box 2 drive backplane port 1 to type-a controller port 2
LFF drive power cable
Cable color Description
Orange Power cable from box 1 drive backplane to system board power connector 1
Blue Power cable from box 2 drive backplane to system board power connector 3
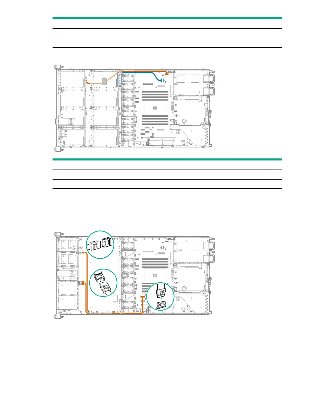
Cable routing: 8/16/20 SFF SAS/SATA drive model
8 SATA drives (box 1) connected to system board
8 SAS/SATA drives (box 1) connected to HPE Smart Array type-a modular controller
110
Cabling

Table of Contents

Other manuals for HPE ProLiant DL325 Gen10 Plus

Related product manuals