EasyManua.ls Logo

JUMO TYA 202 - Three-Phase Economy Circuit, Master;Slave for Resistive Loads in Star, Delta Circuit or Transformer Loads (Resistive-Inductive)

JUMO TYA 202
108 pages
Print Icon
To Next Page IconTo Next Page
To Next Page IconTo Next Page
To Previous Page IconTo Previous Page
To Previous Page IconTo Previous Page
Loading...
2011-07-01/00561073 [SCR Power Controller TYA202] 37
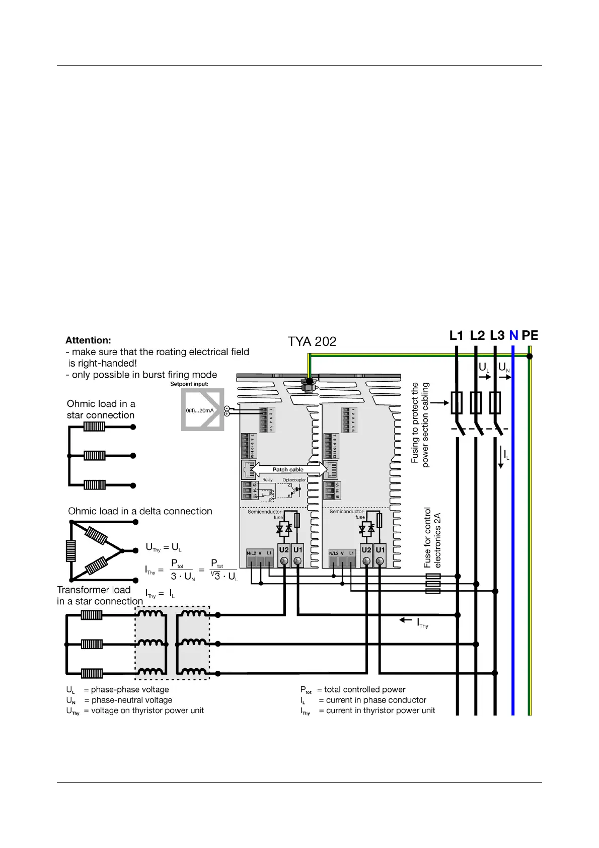
3 Electrical Connection
3.3.1 Three-phase economy circuit, Master/Slave for resistive loads in star,
delta circuit or transformer loads (resistive-inductive)
Prerequisites The devices have to have the same type code and the same device software
version to allow the Master/Slave operation.
The two devices are connected by a max. 30 cm patch cable.
The figure shows the wiring of a TYA 202 that is available completely installed
and configured at the factory but behaves identically to two individual TYA 201
devices in Master/Slave mode.
Operating
method
In the standard version, the master-slave economy circuit operates with a U
2
control. The control electronics of the master power controller perform the ac-
tual power control function, and drive the slave unit in synchronization. This
makes it possible to drive transformer loads. The combination of the fixed cy-
cle time and the U
2
control makes it possible to achieve good voltage regula-
tion for the individual load resistances, even in the event of a partial load fail-
ure.

Table of Contents

Related product manuals