EasyManua.ls Logo

Kubota 07-CR-E5 - System Wiring Diagram

Kubota 07-CR-E5
373 pages
Print Icon
To Next Page IconTo Next Page
To Next Page IconTo Next Page
To Previous Page IconTo Previous Page
To Previous Page IconTo Previous Page
Loading...
COMMON RAIL SYSTEM
07-CR-E5,07-CR-TE5,07-CR-TIE5, DM
1-M12
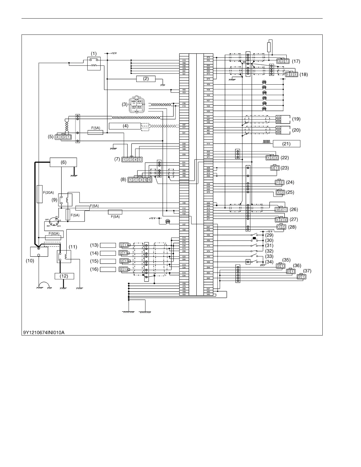
(4) System Wiring Diagram
9Y3200007CRM0012US0
(1) Main Relay
(2) Fuel Feed Pump
(3) CAN1 Connector
(For Service)
(4) CAN2 Connector
(For OEM Machine)
(5) EGR Valve
(6) Starter
(7) Air Flow Sensor
(8) Intake Throttle Valve
(9) Starter Relay
(10) Battery
(11) Glow Relay
(12) Glow Plug
(13) Injector 1
(14) Injector 2
(15) Injector 3
(16) Injector 4
(17) Crankshaft Position Sensor
(18) Camshaft Position Sensor
(19) Accel Sensor 1
(20) Accel Sensor 2
(21) Vehicle Speed Sensor
(22) Differential Pressure Sensor
(ΔP)
(23) SCV (Suction Control Valve)
(24) Fuel Temperature Sensor
(25) Coolant Temperature Sensor
(26) Rail Pressure Sensor
(27) Boost Pressure Sensor
(28) Intake Air Temperature
Sensor
(29) Stop Switch
(30) Parked Regeneration Switch
(31) Parking Switch
(32) Regeneration Inhibit Switch
(33) Neutral Switch
(34) Oil Pressure Switch
(35) Exhaust Gas Temperature
Sensor (T
0
)
(36) Exhaust Gas Temperature
Sensor (T
1
)
(37) Exhaust Gas Temperature
Sensor (T
2
)
DPF: Diesel Particulate Filter
KiSC issued 03, 2022 A

Table of Contents

Related product manuals