EasyManua.ls Logo

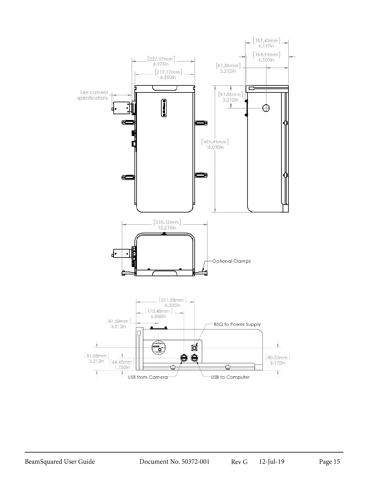
OPHIR BeamSquared - 1.4 BeamSquared Optical Train Dimensions

OPHIR BeamSquared
112 pages
Print Icon
To Next Page IconTo Next Page
To Next Page IconTo Next Page
To Previous Page IconTo Previous Page
To Previous Page IconTo Previous Page
Loading...
BeamSquared Optical Train Dimensions 1.4

Table of Contents

Related product manuals