EasyManua.ls Logo

Rexroth Indramat DURADRIVE SYSTEM200 - Identifying the Components; Component Designations

Rexroth Indramat DURADRIVE SYSTEM200
180 pages
Print Icon
To Next Page IconTo Next Page
To Next Page IconTo Next Page
To Previous Page IconTo Previous Page
To Previous Page IconTo Previous Page
Loading...
DURADRIVE Drive Controllers Identifying the Components 10-1
DOK-DURADR-HDC01.1****-PR02-EN-P
10 Identifying the Components
10.1 Component designations
Every drive component is labelled with a type designation.
There is a type plate on every unit including the motor.
There is a label around the standard cable (cable brand). Type
designation and length is on this label. (The designation of the actual
cable without connector is printed on the cable sheath.)
The accessories in the bags are either identified with their ID on the bag
or there is a packaging slip.
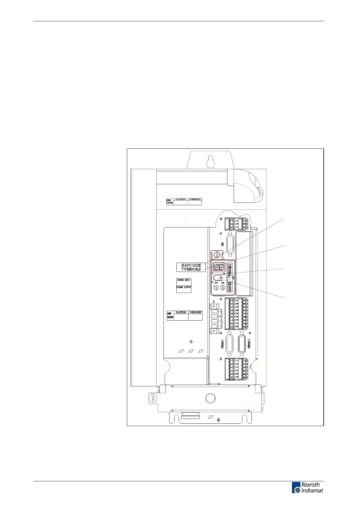
1
FA5134F1.FH7
2
3
4
1: Basic unit type plate
2: Unit design type plate
3: Firmware type plate
4: Programming module type plate
Fig. 10-1: Type plates
LSA Control S.L. www.lsa-control.com comercial@lsa-control.com (+34) 960 62 43 01

Table of Contents