EasyManua.ls Logo

Rexroth Indramat DURADRIVE SYSTEM200 - DURADRIVE HDC01.1 Drive Controller; Technical Data; Dimensions

Rexroth Indramat DURADRIVE SYSTEM200
180 pages
Print Icon
To Next Page IconTo Next Page
To Next Page IconTo Next Page
To Previous Page IconTo Previous Page
To Previous Page IconTo Previous Page
Loading...
DURADRIVE Drive Controllers DURADRIVE HDC01.1 Drive Controller 4-1
DOK-DURADR-HDC01.1****-PR02-EN-P
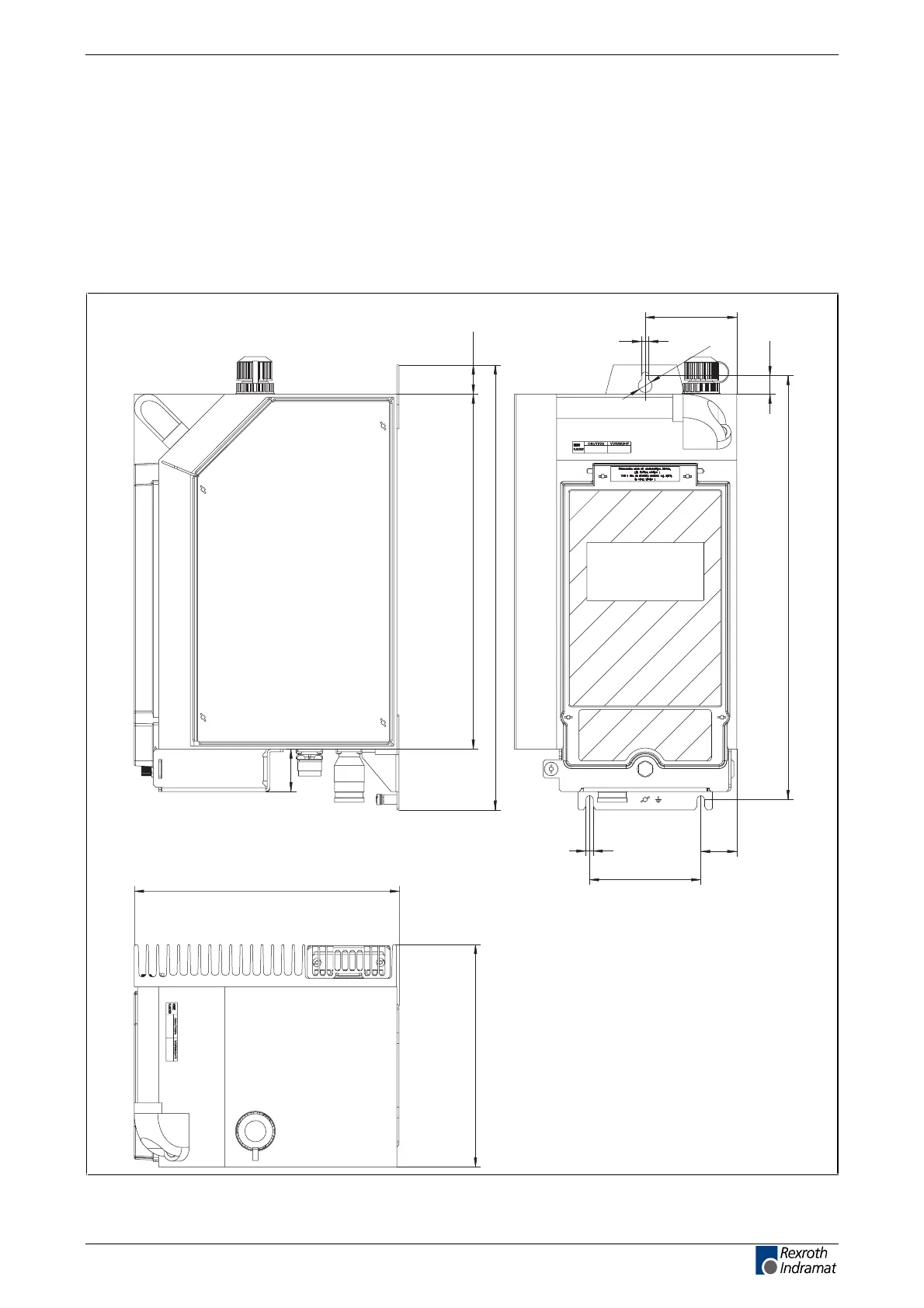
4 DURADRIVE HDC01.1 Drive Controller
4.1 Technical data
Dimensions
Drive Controller HDC01.1-A040N
86.5
7
13
17.5
400
34
105
7
250
210
MB5056F1.FH7
40
27.5
335
420
Fig. 4-1: Drive Controller HDC01.1-A040N
LSA Control S.L. www.lsa-control.com comercial@lsa-control.com (+34) 960 62 43 01

Table of Contents