EasyManua.ls Logo

SICK ALIS - Dimensional Drawings; ALIS Laser- Laser Based Bar Code Reading System

SICK ALIS
90 pages
Print Icon
To Next Page IconTo Next Page
To Next Page IconTo Next Page
To Previous Page IconTo Previous Page
To Previous Page IconTo Previous Page
Loading...
77
8027605/V1-0/2022-03| SICK S Y S T E M D E S C R I P T I O N | ALIS
Subject to change without notice
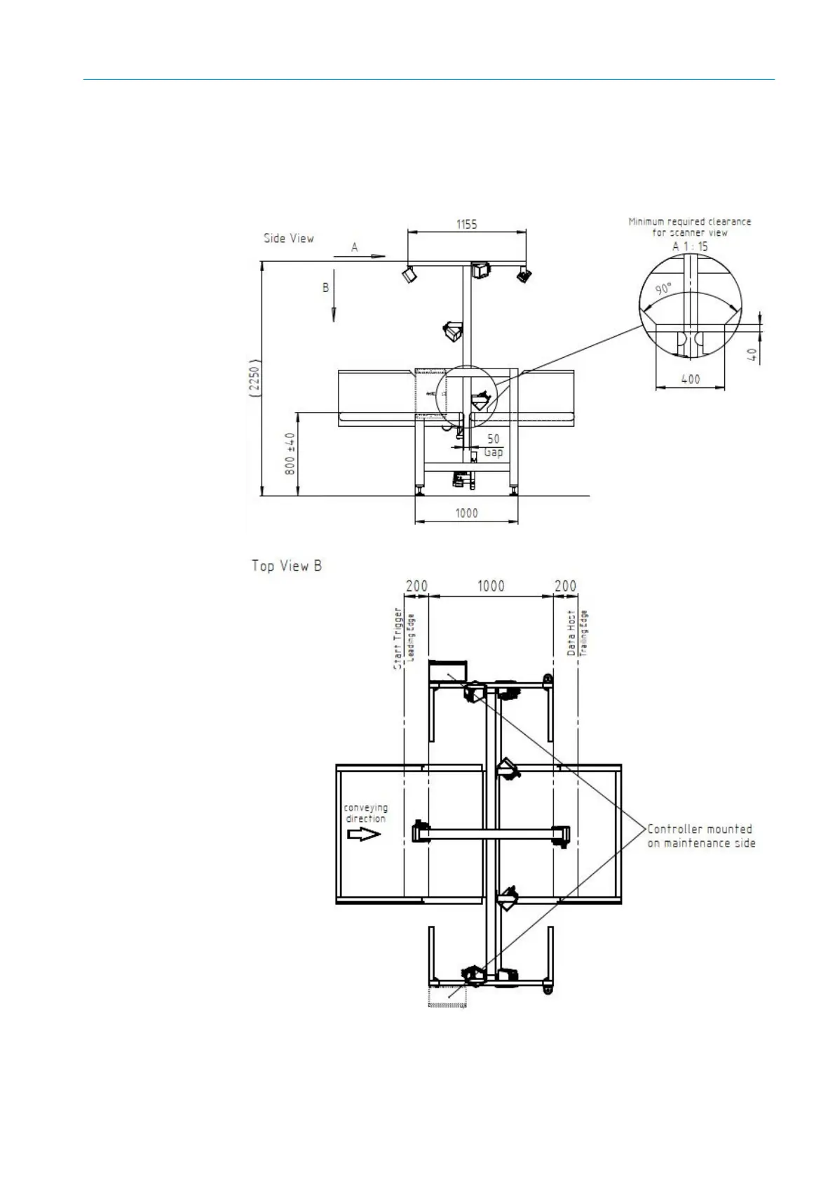
DIMENSIONAL DRAWINGS 11
11 Dimensional Drawings
11.1 ALIS Laser- Laser Based Bar Code Reading System
Fig. 61: Side view
Fig. 62: Top View B

Table of Contents

Related product manuals