EasyManua.ls Logo

SICK ALIS - ALIS Camera - Camera System with 10 Matrix Cameras

SICK ALIS
90 pages
Print Icon
To Next Page IconTo Next Page
To Next Page IconTo Next Page
To Previous Page IconTo Previous Page
To Previous Page IconTo Previous Page
Loading...
81
8027605/V1-0/2022-03| SICK S Y S T E M D E S C R I P T I O N | ALIS
Subject to change without notice
DIMENSIONAL DRAWINGS 11
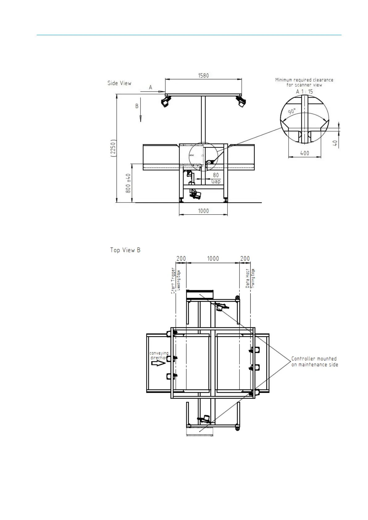
11.2.2 ALIS Camera - Camera System with 10 Matrix Cameras
Fig. 67: Side View
Fig. 68: Top view B

Table of Contents

Related product manuals