EasyManua.ls Logo

SICK ALIS - ALIS RFID - Radio Frequency Identification System

SICK ALIS
90 pages
Print Icon
To Next Page IconTo Next Page
To Next Page IconTo Next Page
To Previous Page IconTo Previous Page
To Previous Page IconTo Previous Page
Loading...
83
8027605/V1-0/2022-03| SICK S Y S T E M D E S C R I P T I O N | ALIS
Subject to change without notice
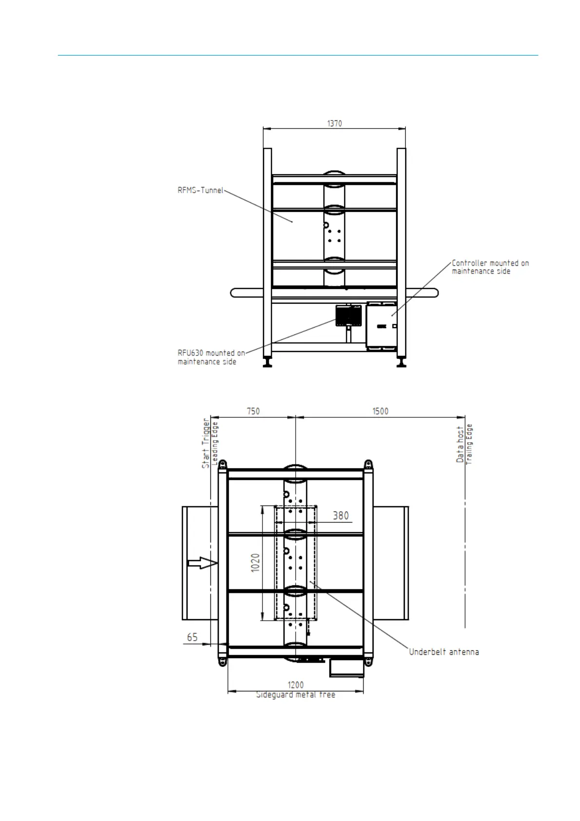
DIMENSIONAL DRAWINGS 11
11.3 ALIS RFID - Radio Frequency Identification System
Fig. 70: Side view
Fig. 71: Top view

Table of Contents

Related product manuals