EasyManua.ls Logo

SICK TRANSIC111LP - Page 100

SICK TRANSIC111LP
108 pages
Print Icon
To Next Page IconTo Next Page
To Next Page IconTo Next Page
To Previous Page IconTo Previous Page
To Previous Page IconTo Previous Page
Loading...
100
8014084/ZWT7/V3-1/2020-06 | SICKOPERATING INSTRUCTIONS | TRANSIC111LP
Subject to change without notice
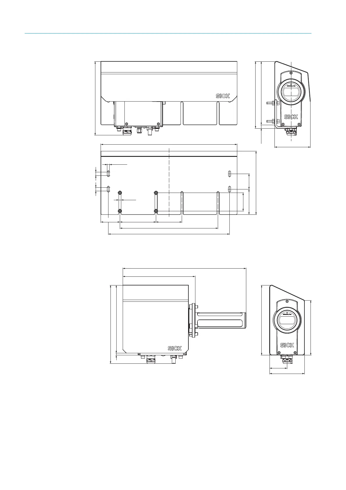
10 SPECIFICATIONS
Fig. 50: Weather hood for wall installation
Fig. 51: Weather hood for flange installation
210 (8.27)
389 (15.31)
6.5 (0.26)
10 (0.39) 10 (0.39)
54.5 (2.15)
7 (0.28)
103 (4.06) 74 (2.91)
280 (11.02)
346 (13.62)
44 (1.73)
181 (7.13)
52 (2.05)
72.25 (2.84)
191 (7.52)
181 (7.13)10 (0.39)
102 (4.02)
1
2
All specifications in mm (inches)
352 (13.86)
207 (8.15)
224 (8.82)
194 (7.64)
6
(.24)
200 (7.87)
157 (6.18)
50 (1.97)
100 (3.94)
All specifications in mm (inches)

Table of Contents

Related product manuals