EasyManua.ls Logo

Suzuki Wagon R RB310 - DTC C1057 - Power Source Circuit

Suzuki Wagon R RB310
254 pages
Print Icon
To Next Page IconTo Next Page
To Next Page IconTo Next Page
To Previous Page IconTo Previous Page
To Previous Page IconTo Previous Page
Loading...
ANTILOCK BRAKE SYSTEM (ABS) 5E-27
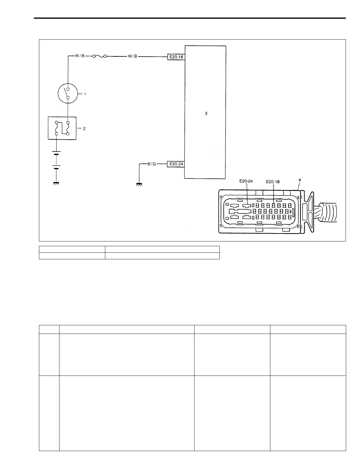
DTC C1057 – Power Source Circuit
DESCRIPTION
The ABS control module monitors the power source voltage at terminal “E20-18”. When the power source volt-
age becomes extremely high or low, this DTC will be set. As soon as the voltage rises or lowers to the specified
level, the set DTC will be cleared.
INSPECTION
1. Ignition switch 3. ABS hydraulic unit/control module assembly
2. Main fuse 4. ABS hydraulic unit/control module connector
Step Action Yes No
1 1) Connect a voltmeter between battery posi-
tive (+) terminal and body ground.
2) Start the engine and measure the maximum
voltage when racing the engine.
Is it over 18 V?
Check charging system
referring to “CHARGING
SYSTEM” section.
Go to Step 2.
2 1) Disconnect ABS hydraulic unit/control mod-
ule connector.
2) Keep the engine idling, measure the voltage
between terminal “E20-18” of ABS control
module and body ground.
Is it always under 9 V?
Check charging system
referring to “CHARGING
SYSTEM” section.
Imperfect short between
wire “W/B” and ground.
Poor connection of termi-
nal “E20-18” or “E20-24”
of the ABS control mod-
ule.
If the above are in good
condition, substitute a
known-good ABS hydrau-
lic unit/control module and
recheck.

Table of Contents

Related product manuals