EasyManua.ls Logo

Suzuki Wagon R RB310 - Transmission Control Module (TCM)

Suzuki Wagon R RB310
254 pages
Print Icon
To Next Page IconTo Next Page
To Next Page IconTo Next Page
To Previous Page IconTo Previous Page
To Previous Page IconTo Previous Page
Loading...
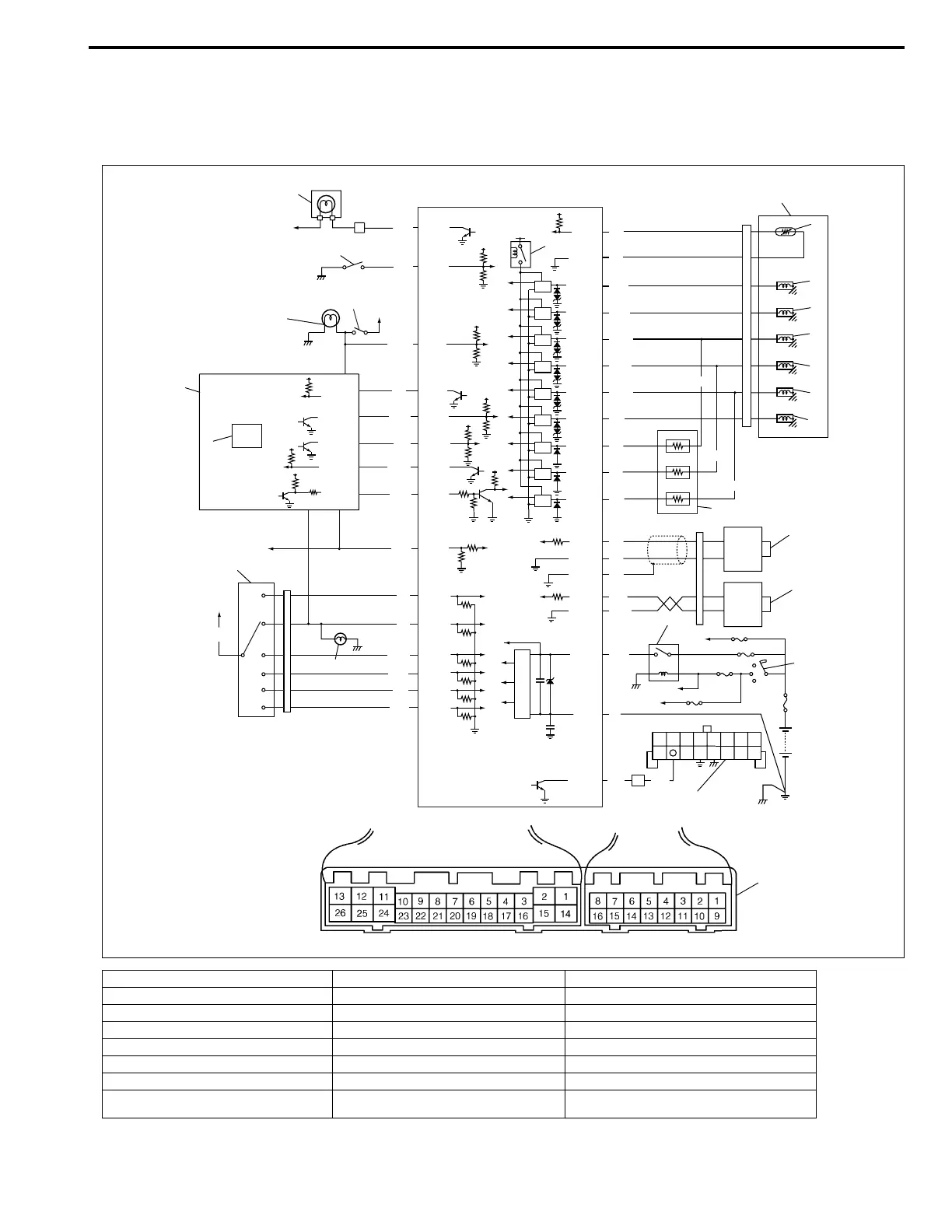
AUTOMATIC TRANSMISSION (4 A/T) 7B-7
Transmission control module (TCM)
TCM is an electronic circuit component that controls gear shift, idle-up according to the signal from each sensor.
Also it has learning control function for performing optimum control. It is a microcomputer consisting of an IC,
transistor, diode, etc. It is installed behind glove box.
1. “O/D OFF” lamp 9. Backup lamp 17. TCC (lock-up) solenoid valve
2. O/D off switch 10. A/T 18. Dropping resister
3. Brake light 11. Transmission fluid temperature sensor 19. Output shaft speed sensor
4. Brake light switch 12. Shift solenoid valve-A (No.1) 20. Input shaft speed sensor
5. ECM 13. Shift solenoid valve-B (No.2) 21. A/T relay
6. Barometric pressure sensor 14. Shift solenoid valve-C (No.3) 22. Ignition switch
7. To A/C compressor 15. Shift solenoid valve-D (No.4) 23. Data link connector (DLC)
8. Transmission range sensor 16. Shift solenoid valve-E (No.5) 24. Terminal arrangement of TCM connector
(viewed from harness side)
E22-14
E22-21
E21-5
E22-23
E23-16
Bl/B
Bl/Y
3
4
+BB
G/W
W
Y/B
Gr
Bl/W
Br/Y
B/Y
5
7
8
E13-8
E12-8
E13-18
E13-20
E12-5
E13-5
O
R
Bl/Y
Y
G/R
E12-1
E12-2
E12-3
E12-9
E12-10
E12-11
G
G/B
P
R
N
D
2
L
9
E13-21
E13-17
E13-4
12V
12V
12V
12V
12V
IG1
IG11
5V
5V
E13-3
E13-16
E13-10
E13-23
E13-24
E13-25
E13-26
E13-22
E13-11
E13-12
E13-13
E12-6
E12-14
E12-13
E12-7
E12-15
E13-2
E13-15
E12-12
W/R
W/R
B
B
B
Lg
P/Bl
Lg/B
W
W
Y
R
Y/Bl
B/O
W/Bl
W/Bl
R/W
B/R
Y/Bl
Br
Bl
G
10
11
12
13
14
16
17
R/W
18
19
20
+BB
21
22
23
12V
12V
12V
15
12V
IG1
IG11
5V
1
2
28
6
24
E13
E12

Table of Contents

Related product manuals