EasyManua.ls Logo

Synrad FH FLYER - FH Flyer;Model 48-5 Package Outline Drawing

Synrad FH FLYER
250 pages
Print Icon
To Next Page IconTo Next Page
To Next Page IconTo Next Page
To Previous Page IconTo Previous Page
To Previous Page IconTo Previous Page
Loading...
technical reference
SYNRAD FH Series Flyer Operator’s Manual Version 3.4
167
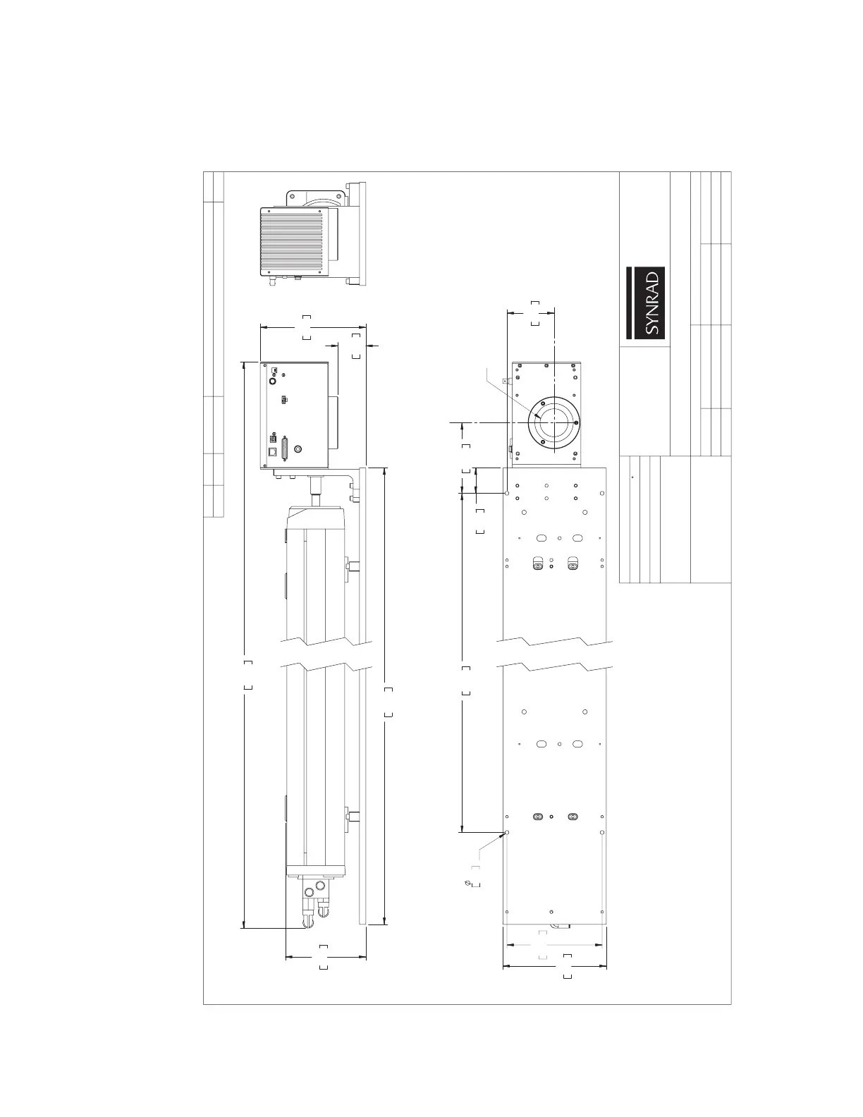
FH Flyer/Model 48-5 package
outline drawing
Figure 6-24
FH Flyer/Model 48-5 package outline and mounting dimensions
091.2
36.55
33.8
5.112
88.25
3.3431
0.4211
52.44
53.6
2.161
:ETON
.SRETEMILLIM ERA ] [ STEKCARB NI NOISNEMID
5753
NOITCUDORP OT DESAELER
70-guA-03
A
:NOITPIRCSED
:HSINIF
:LAIRETAM
VER
OCE
ETAD
NOITPIRCSED
BD
:DETON SSELNU SECNARELOT
± = ELGNA
1.0
± = x.
10.0
± = xx.
500.0
± = xxx.
5.0
sehcnI
I
1
.CNIDARNYSFONOISSIMREP
:REBMUN TRAP
:REBMUN ELIF/GWD
TEEHS
:GNE
:YB NWARD
:ETAD
:STINU
:YROGETAC
:YB DEKCEHC
:ETAD
B :EZIS
:SSALC HSINIF
:YB DEVORPPA
:ETAD
NETTIRWTUOHTIWTRAPNIRO
ELOHWNIDESOLCSIDRODESU
EBTONLLAHSDNA.CNIDARNYS
OT YRATEIRPORPSIGNIWARD SIHT
7663-943)524( :xaF
001OVE ,REYLF - GNITNUOM & ENILTUO
70-yaM-13
201-67691-003
1
201-67691-003
fo
YRATEIRPORP
.CNI DARNYS
ecalP supmaC 0064
57289 AW ,oetlikuM
0053-943)524( :enohP
A
TIXE MAEB
GNITNUOM
003.
005.7
8.602
655.5
05.091
21.141
000.53
00.988
08.05
000.2
26.7
SELOH
X4
41.8
117.3
52.49

Table of Contents

Related product manuals