EasyManua.ls Logo

Synrad FH FLYER - FH Flyer;Firestar V30 Package Outline Drawing

Synrad FH FLYER
250 pages
Print Icon
To Next Page IconTo Next Page
To Next Page IconTo Next Page
To Previous Page IconTo Previous Page
To Previous Page IconTo Previous Page
Loading...
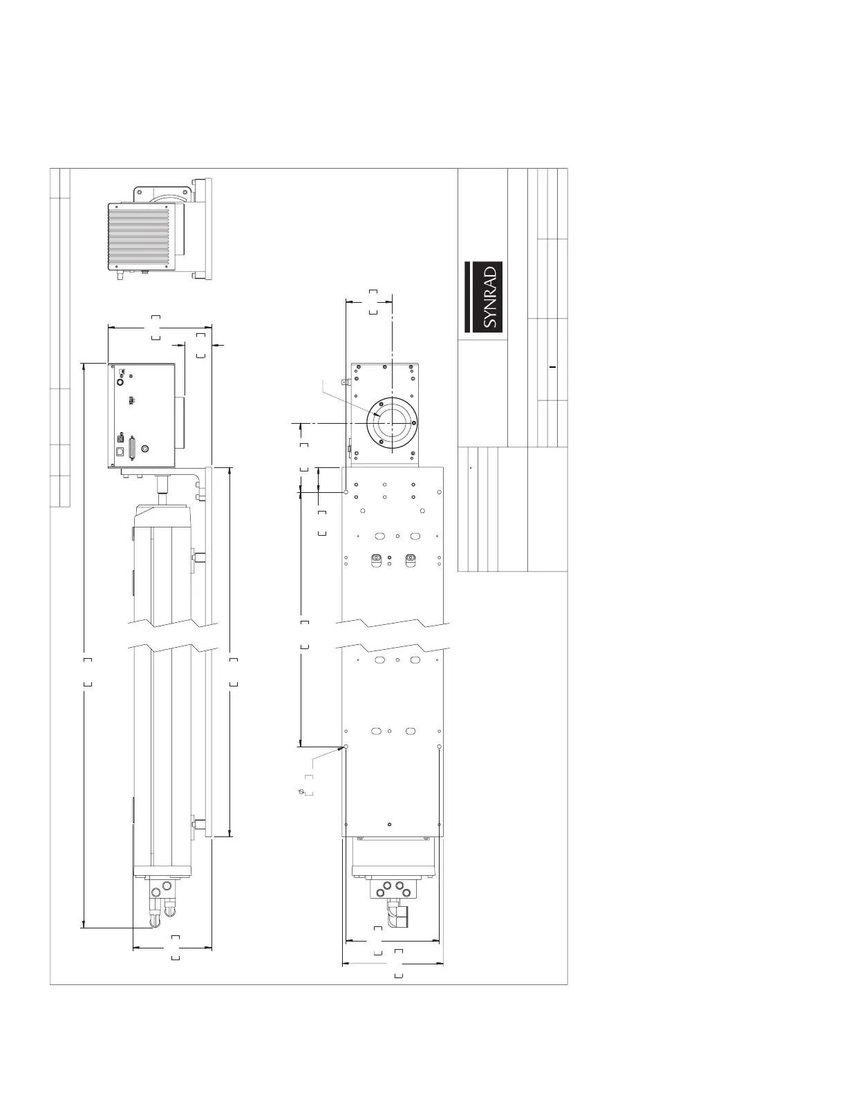
FH Flyer/Firestar v30 package
outline drawing
Figure 6-25
FH Flyer/Firestar v30 package outline and mounting
dimensions
SYNRAD FH Series Flyer Operator’s Manual Version 3.4
168
5753
NOITCUDORP OT DESAELER
70-guA-03
A
:NOITPIRCSED
:HSINIF
:LAIRETAM
VER
OCE
ETAD
NOITPIRCSED
BD
:DETON SSELNU SECNARELOT
± = ELGNA
1.0
± = x.
10.0
± = xx.
500.0
± = xxx.
5.0
sehcnI
I
1
.CNIDARNYSFONOISSIMREP
:REBMUN TRAP
:REBMUN ELIF/GWD
TEEHS
:GNE
:YB NWARD
:ETAD
:STINU
:YROGETAC
:YB DEKCEHC
:ETAD
B :EZIS
:SSALC HSINIF
:YB DEVORPPA
:ETAD
NETTIRWTUOHTIWTRAPNIRO
ELOHWNIDESOLCSIDRODESU
EBTONLLAHSDNA.CNIDARNYS
OT YRATEIRPORPSIGNIWARD SIHT
7663-943)524( :xaF
521OVE ,REYLF - GNITNUOM & ENILTUO
70-yaM-13
521-67691-003
1
521-67691-003
fo
YRATEIRPORP
.CNI DARNYS
ecalP supmaC 0064
57289 AW ,oetlikuM
0053-943)524( :enohP
A
88.95
1.1251
52.44
0.4211
33.8
5.112
36.55
091.2
53.6
2.161
:ETON
.SRETEMILLIM ERA ] [ STEKCARB NI SNOISNEMID
TIXE MAEB
000.53
67.602
05.091
52.49
041.8
117.3
655.5
21.141
GNITNUOM
003.
26.7
SELOH
00.988
005.7
X4
000.2
08.05

Table of Contents

Related product manuals