EasyManua.ls Logo

Vertiv Liebert APM Plus - Page 135

Vertiv Liebert APM Plus
196 pages
Print Icon
To Next Page IconTo Next Page
To Next Page IconTo Next Page
To Previous Page IconTo Previous Page
To Previous Page IconTo Previous Page
Loading...
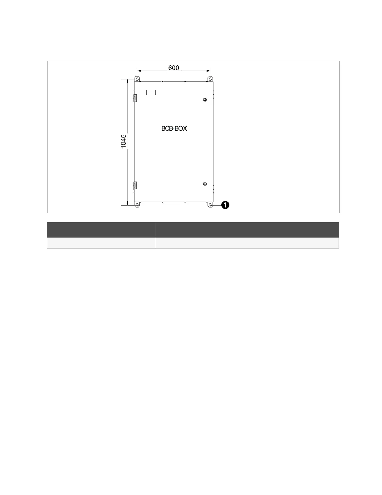
Figure 7.4 Front dim ension of BC B cabinet (unit: m m )
N o. Descriptio n
1 Installation Hole
7 Battery
122
Vertiv™ Liebert® APM Plus User Manual

Table of Contents

Related product manuals