EasyManua.ls Logo

Vertiv Liebert APM Plus - 9.2 Option Introduction

Vertiv Liebert APM Plus
196 pages
Print Icon
To Next Page IconTo Next Page
To Next Page IconTo Next Page
To Previous Page IconTo Previous Page
To Previous Page IconTo Previous Page
Loading...
9.2 Option Introduction
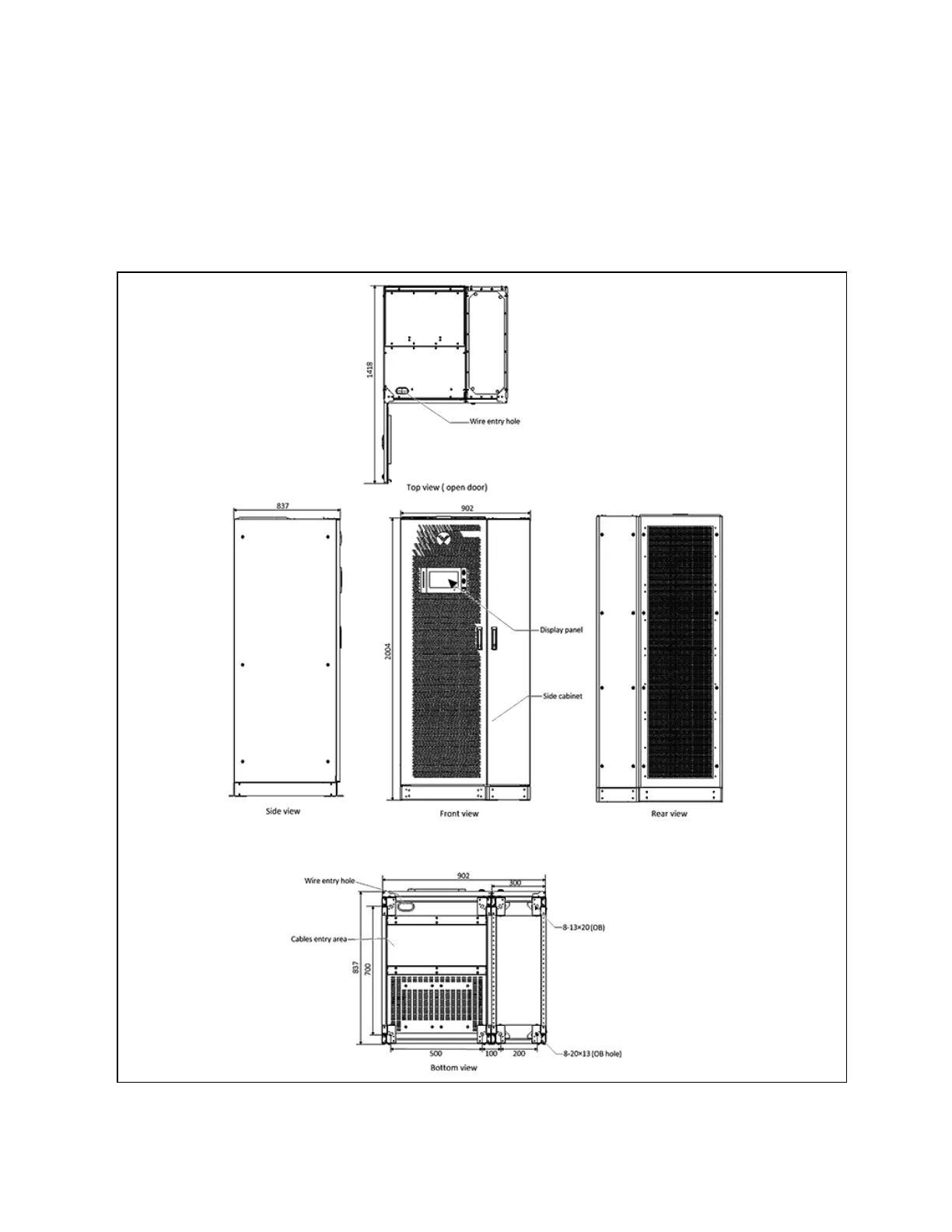
9.2.1 Optional Side Cabinet
Parallel cabinet mechanical dimensions
Figure 9.1 T op /front/sid e/bottom view of the U P S (w ith op tional side cab inet) (unit: m m )
9 Options
143
Vertiv™ Liebert® APM Plus User Manual

Table of Contents

Related product manuals