EasyManua.ls Logo

Vertiv Liebert APM Plus - 3.8 Installation Drawings

Vertiv Liebert APM Plus
196 pages
Print Icon
To Next Page IconTo Next Page
To Next Page IconTo Next Page
To Previous Page IconTo Previous Page
To Previous Page IconTo Previous Page
Loading...
3.8 Installation Drawings
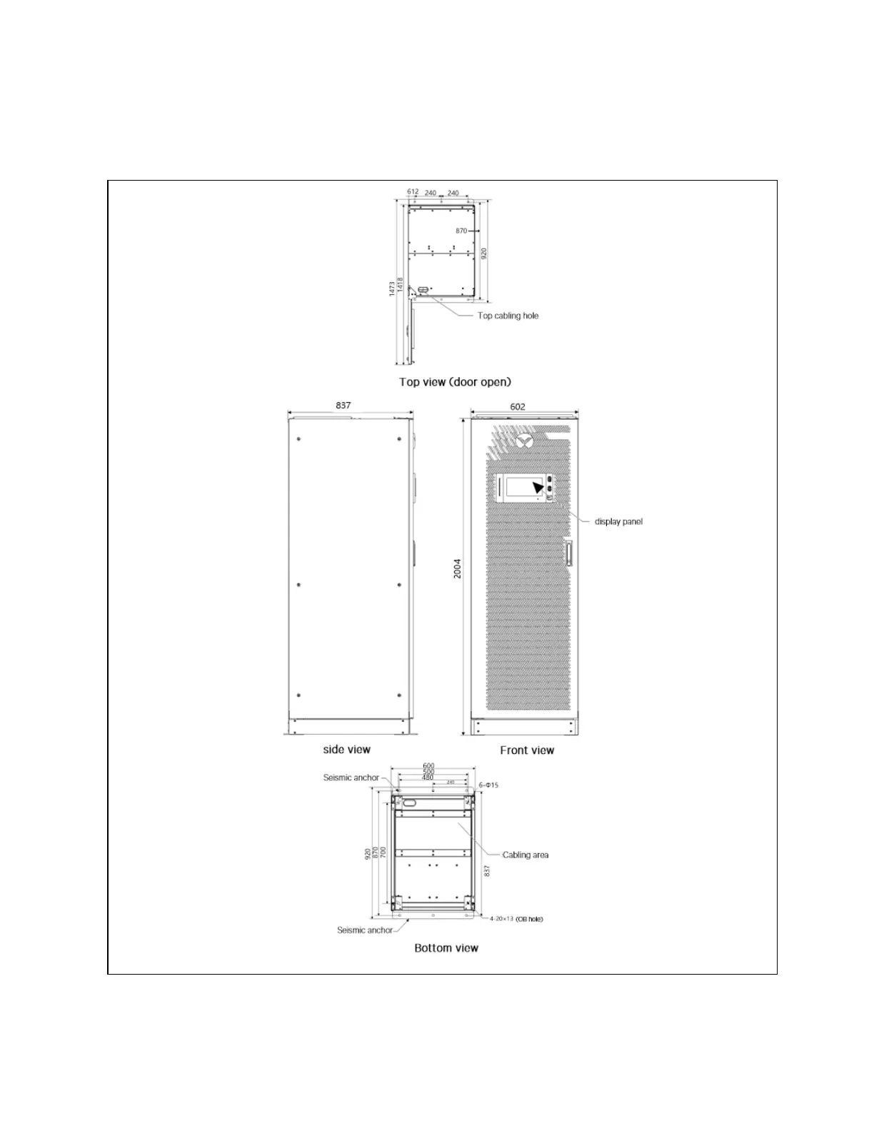
Figure 3.7 Top/front/sid e/bottom view of th e U P S (un it: m m )
3 Mechanical Installation
26
Vertiv™ Liebert® APM Plus User Manual

Table of Contents

Related product manuals